
Pachino, SR, Italia
Residenziale - Appartamento
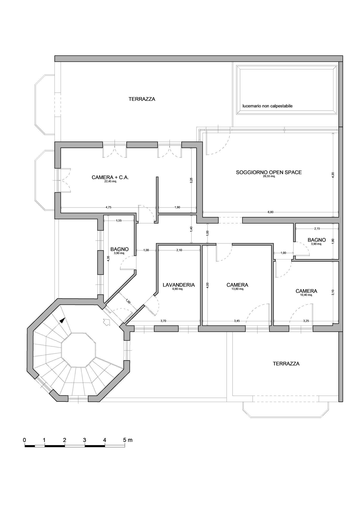
Il nostro progetto prevede la creazione degli spazi richiesti dal cliente, con:
1. soggiorno open space posizionato nell'ampio locale vetrato;
2. camera master con cabina armadio, affacciata anch'essa sulla grande terrazza;
3. due camerette affacciate sulla terrazza più piccola;
4. bagno principale finestrato, completo di doccia walk in, sanitari e lavabo;
5. bagno piccolo, anche questo con doccia, sanitari e lavabo;
6. locale lavanderia, completo di parete attrezzata con lavatrice, asciugatrice, lavello di servizio, stenditoio, spazio stireria e spazio contenitore.
Le terrazze verranno arredate come naturale estensione del living e delle camere, con tavolo da esterno, divanetti lounge e poltroncine per creare area di convivio e relax.