🔥 CYBER MONDAY 24H: -60% su tutti i prezzi del sito! Solo fino a mezzanotte. Usa il codice CYBERMONDAY25 👉🏼
img

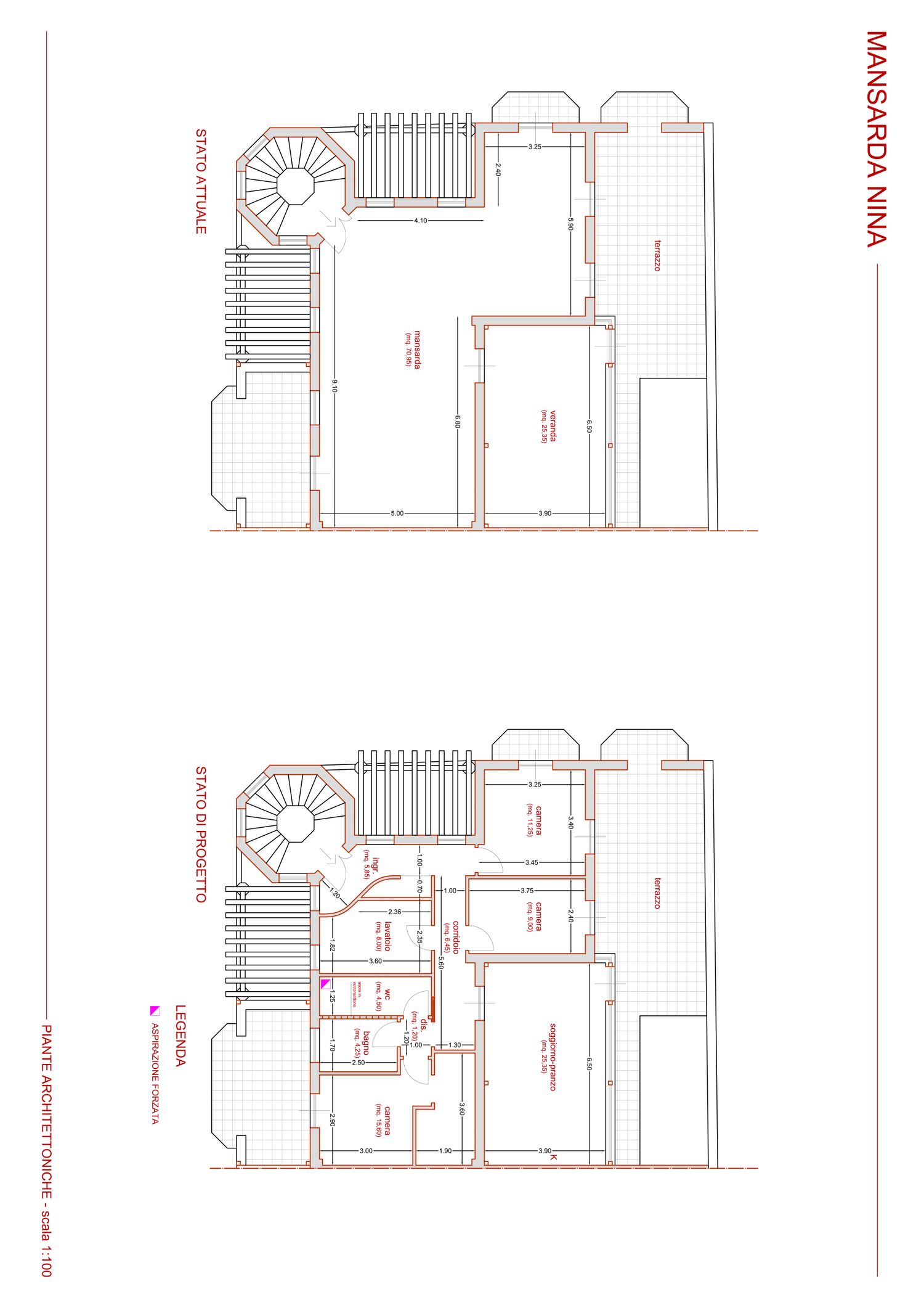
Mansarda Nina

Pachino, SR, Italia

Residenziale - Appartamento

NICO FIORAVANTI

  • architect
  • CASTIGNANO, Italy
Descrizione Progetto

Il progetto risolve la distribuzione richiesta mediante due corridoi distributivi, il primo dall’ingresso alle camere, il secondo che si innesta sul precedente collegando gli ambienti rimanenti: soggiorno pranzo, camera principale ed il blocco servizi locali accessori; si è pensato di raggruppare questi ultimi (bagno, Wc e lavanderia) in una unica zona in modo da semplificare i lavori impiantistici. Gli ambienti creati rispettano le metrature di legge ed i corretti rapporti aeroilluminanti;

Leggi di Più