
Rome, Italy
Residenziale - attic
Descrizione
Hello everyone! I bought a house in Rome and around October I will start the renovation. I have heard so much about CoContest in the newspapers that I decided to try it myself, because I saw that the designers who work there are real professionals.
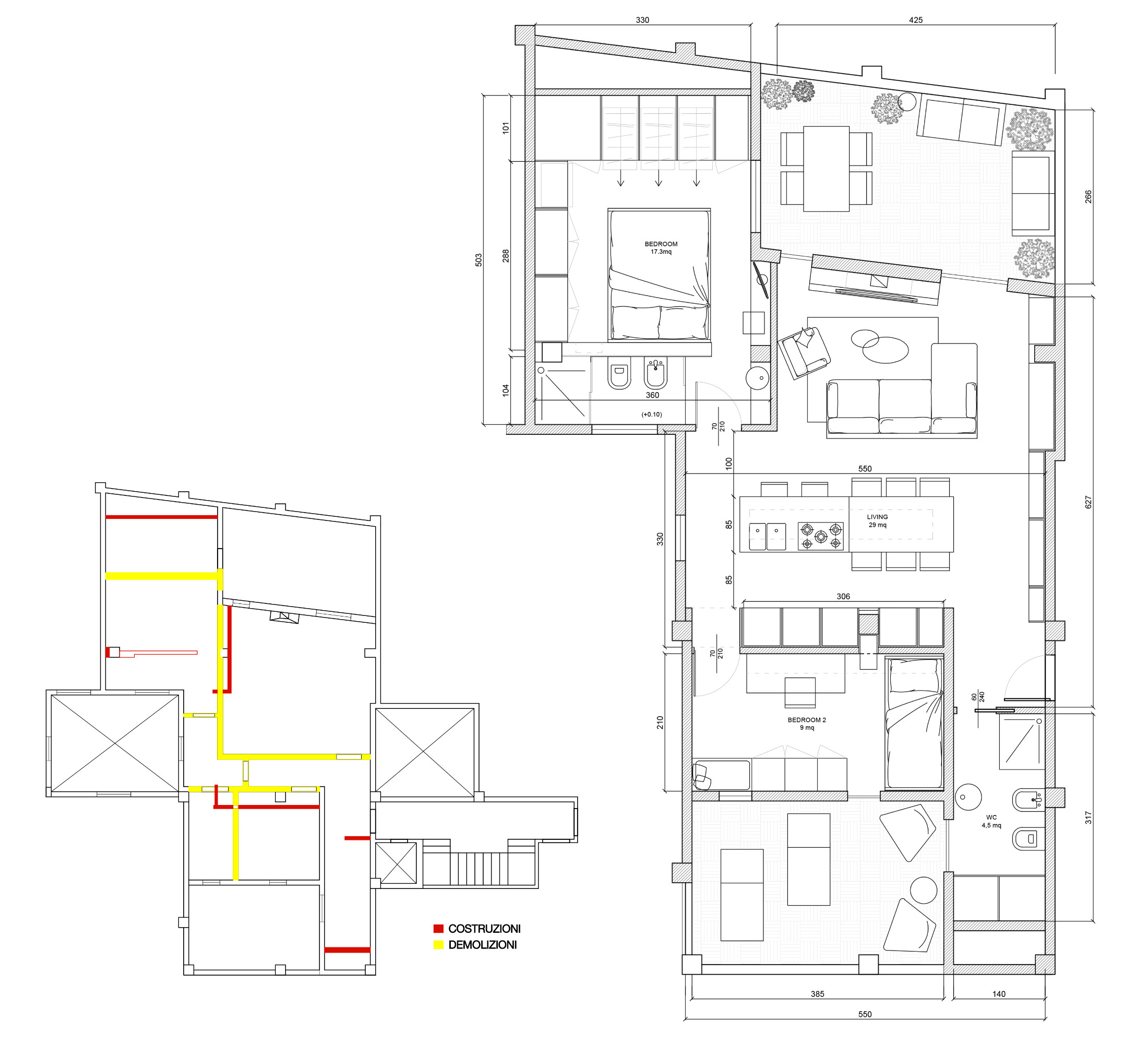
The main objective is to redistribute the space efficiently; In fact I would like to transform the attic apartment into 2 bedrooms, a living area with adjoining kitchen and two bathrooms plus a walk-in closet and a space / warehouse for food storage.
Obviously the problem is to utilize the sloping space of the attic intelligently with the use of special made furniture.
In the master bedroom I want a direct access to the walk-in closet and the bath but do not necessarily need a wall dividing the two spaces; I also accept innovative solutions like glass or, another alternative could be making the bathroom accessible through the walk in closet. But if you do not have enough space to create the two rooms, you can focus on the single room with an adjoined bathroom and walk in closet.
In the living area I would like to keep the fireplace (while changing the current one with something modern). The kitchen attached to the living room should be a well designed kitchen (up to € 15,000 / € 20,000 if savings are happy, but I prefer elegant and durable design).
The parquet should be maintained in a modern minimalist fashion, and the bathrooms should have showers.
I will consider working with the winning designer to renovate my home!
Ciao a tutti da pochissimo ho acquistato una casa a Roma ed intorno ad ottobre vorrei iniziare la ristrutturazione. Dopo aver sentito tanto parlare sui giornali di CoContest ho deciso di provare anche io, perché ho visto che i designers che ci lavorano sono dei veri professionisti.
L’obiettivo principale è quello di ridistribuire gli spazi in maniera efficiente; difatti vorrei ricavare da questo appartamento mansardato 2 camere da letto, una zona living con cucina annessa e 2 bagni più una cabina armadio e uno spazio/magazzino per la conservazione di alimenti.
Ovviamente la problematica è sfruttare gli spazi “morti” tipo sottotetti in maniera intelligente infatti per l’arredo valuto anche mobilio creato su misura.
Nella camera patronale mi piacerebbe che ci sia accesso diretto alla cabina armadio e un bagno interno non necessariamente con un muro a dividere i due spazi, ma accetto anche soluzioni innovative tipo vetri, oppure accesso al bagno attraverso la cabina armadio, se non trovate lo spazio sufficiente per fare i due ambienti richiesti o vi sembra che ci siano spazi sacrificati valuto anche un ambiente unico bagno cabina armadio!
Nella zona living vorrei mantenere il camino (pur cambiando quello attuale con qualcosa di moderno) e la cucina annessa al salone deve essere una cucina importante (fino a 15000€/20000€, se risparmio sono contento, ma preferisco una cosa durevole e di design).
Il parquet va mantenuto, mi piace uno stile moderno quasi minimalista. I bagni entrambi con docce.
Valuto di proseguire i lavori con il designer vincitore!