
21052 Busto Arsizio, VA, Italy
Residenziale - Loft
Descrizione
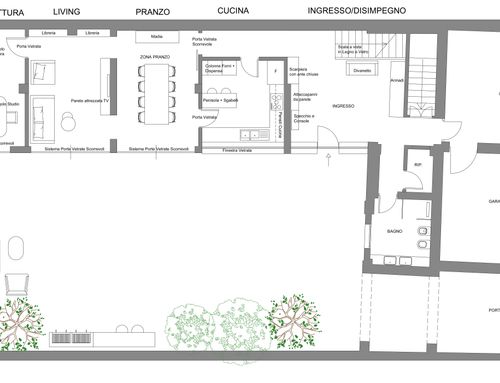
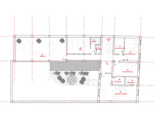
Soluzione indipendente per una famiglia con bambini adolescenti. Vorrei fare la zona giorno al piano 0 con grandi vetrate. Piano 1 zona notte ed area fitness. Il terrazzo eventualmente si può ridurre per sfruttare al meglio il piano mantenendo una sorta di esclusività. Consapevoli dello stato attuale, si può modificare vano scale e, salvo budget, prevedere eventualmente ascensore. Non devono mancare lavanderia e ripostigli. In cortile vorrei creare un giardino. Parlando con le autorità competenti ho individuato i posti autorimessa per auto, moto, cicli nelle stanze ad oggi denominate uso ufficio. Ingresso pedonale nel vano portico. Molto probabilmente si può demolire il tetto, dì conseguenza il piano delle stanze può essere modificato. Mantenere facciata lato strada come da foto allegata (google map) o diversamente sfruttando il superbonus. No stile country.
https://www.coldwellbanker.it/i-606581-vendita-casa-indipendente-busto-arsizio-tribunale/
Independent solution for a family with teenage children. I would like to make the living area on floor 0 with large windows. Floor 1 sleeping area and fitness area. The terrace can possibly be reduced to make the most of the plan while maintaining a sort of exclusivity. Aware of the current state, it is possible to modify the stairwell and, subject to budget, possibly provide a lift. Do not miss laundry and closets. In the courtyard I would like to create a garden. Speaking with the competent authorities, I identified the parking spaces for cars, motorcycles, cycles in the rooms now known as office use. Pedestrian entrance in the portico. Most likely you can demolish the roof, so the floor of the rooms can be changed. Maintain street side facade as in the attached photo (google map) or otherwise using the superbonus. No country style.
Solución independiente para una familia con hijos adolescentes. Me gustaría hacer la sala de estar en el piso 0 con grandes ventanales. Piso 1 área de dormir y área de fitness. Posiblemente, la terraza se puede reducir para aprovechar al máximo el plan manteniendo una especie de exclusividad. Consciente del estado actual, es posible modificar el hueco de la escalera y, sujeto a presupuesto, posiblemente proporcionar un ascensor. No se pierda la ropa y los armarios. En el patio me gustaría crear un jardín. Hablando con las autoridades competentes, identifiqué las plazas de aparcamiento para coches, motos, bicicletas en las habitaciones ahora conocidas como uso de oficina. Entrada peatonal en el pórtico. Lo más probable es que pueda demoler el techo, por lo que el piso de las habitaciones se puede cambiar.. Mantenga la fachada del lado de la calle como se muestra en la foto adjunta (mapa de Google) o de otra manera usando el superbonus. No estilo rústico.