
Naples, Metropolitan City of Naples, Italy
business - bnb
Descrizione
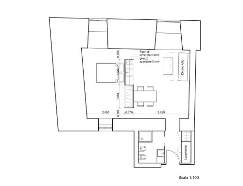
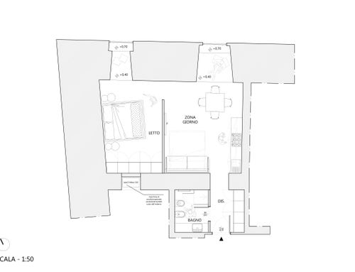
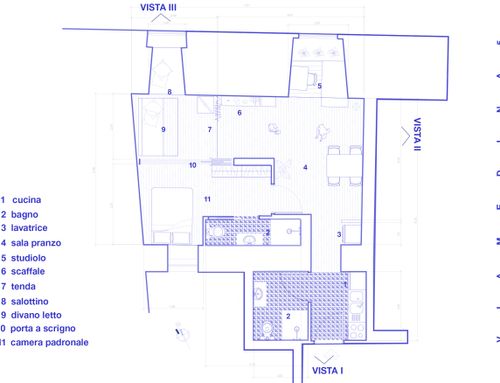
Appartamento di circa 55 mq ubicato al piano ammezzato di un palazzo monumentale sottoposto a vincolo della sovrintendenza. Obiettivo è quello di realizzare una casa vacanza viste le dimensioni ed il posizionamento molto centrale in Napoli via Medina 5. L'appartamento dovrà essere composto da una camera da letto matrimoniale, una seconda camera letto/soggiorno con altri due letti possibilmente confortevoli un angolo cottura ed un bagno per ospitare 4 persone (nucleo familiare o due coppie di amici). Visto il contesto (fabbricato del 700 ed ubicazione), la piccola dimensione ed i gusti personali, sono gradite finiture e soluzioni di pregio.
A 55 square meters "entresol" in a historical building built in the XVII century protected by a cultural heritage bond. Due its location and dimensions, the aim is to turn it into a holiday let. The flat would need to be composed of a master bedroom, a second room designed to create a multifunctional living/sleeping area for another 2 people with a small kitchenette and a bathroom. All for 4 people. Considering the location, the small size, the prestigious building, we would like a superior finish throughout the flat.