
10098 Rivoli, Metropolitan City of Turin, Italy
Residenziale - Casa
Descrizione
ENG:
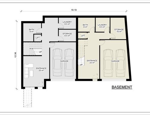
I have to renovate a villa, to obtain two independent semi-detached houses with separate entrances, each portion of the semi-detached house has a surface area between the basement (garage area), first floor and attic of about 250 m², complete with courtyard and outdoor garden.
The two semi-detached villas will be owned by Annalisa the first and Andrea the second, with different styles, colors and needs.
The safety issue is important, as at the moment it is too "brazen", therefore very attractive to thieves, we also need that the interior of the villa is not visible from the street.
The external facade will also have to be completely renovated, with a modern style, and the use of lighting with beams of light.
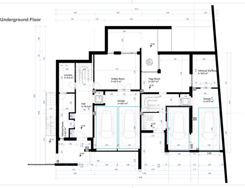
Villa 1 Andrea: villa on the right: underground access area for at least 2 cars, the first floor I would like to give ample space to the living area and a spacious kitchen (I love using designer fireplaces)!
The staircase leading to the attic floor must have an emotional impact!! I would also like to create a room for yoga practice!
Villa 2 Annalisa:
Youtube video:
External: https://youtu.be/2drnUxfGj78
Grand Floor: https://youtu.be/C7B6aY9Vk38
First Floor: https://youtu.be/-MfKzWDmfiw
Attic Floor: https://youtu.be/O3s64VmlK_c
Thanks
SPA:
Tengo que renovar una villa, para obtener dos casas adosadas independientes con entradas independientes, cada parte de la casa adosada tiene una superficie entre el sótano (zona de garaje), el primer piso y el ático de unos 250 m², completo con patio y jardín exterior.
Los dos chalets adosados serán propiedad de Annalisa la primera y Andrea la segunda, con diferentes estilos, colores y necesidades.
La cuestión de la seguridad es importante, ya que actualmente es demasiado "descarada", por lo que resulta muy atractiva para los ladrones, también es necesario que el interior de la villa no sea visible desde la calle.
También habrá que renovar completamente la fachada exterior, con un estilo moderno, y el uso de iluminación con haces de luz.
Villa 1 Andrea: villa a la derecha: área de acceso subterráneo para al menos 2 autos, el primer piso ¡Me gustaría darle un amplio espacio a la sala de estar y una cocina espaciosa (me encanta usar chimeneas de diseño)!
¡¡La escalera que conduce al ático debe tener un impacto emocional!! ¡También me gustaría crear una sala para la práctica de yoga!
Villa 2 Annalisa:
Youtube video:
External: https://youtu.be/2drnUxfGj78
Grand Floor: https://youtu.be/C7B6aY9Vk38
First Floor: https://youtu.be/-MfKzWDmfiw
Attic Floor: https://youtu.be/O3s64VmlK_c
ITA:
Devo ristrutturare una villa, per ottenere due bifamiliari indipendenti e con entrate separate, ogni porzione di bifamiliare ha una metratura tra piano interrato( zona box auto), piano primo e mansarda di circa 250 m², completano il tutto cortile e giardino esterno.
Le due ville bifamiliari saranno di Annalisa la prima e Andrea la seconda, con stili, colori ed esigenze diverse.
Importante è il discorso sicurezza, in quanto al momento è troppo " sfacciata", quindi molto appetibile ai ladri, inoltre abbiamo l'esigenza che dalla strada non sia visibile l'interno della villa.
Anche la facciata esterna dovrà essere completamente rinnovata, con uno stile moderno, e l’utilizzo di illuminazione con fasci di luce.
Villa 1 Andrea: villa di destra: zona interrata accesso per almeno 2 macchine, il piano primo mi piacerebbe dare un ampio spazio alla zona giorno e una spaziosa cucina ( adoro l'utilizzo di camini di design )!
La scala che porta al piano mansardato dovrà essere di impatto emozionale!! un camera mi piacerebbe crearla anche per la pratica di yoga!
Villa 2 Annalisa:
Youtube video:
External: https://youtu.be/2drnUxfGj78
Grand Floor: https://youtu.be/C7B6aY9Vk38
First Floor: https://youtu.be/-MfKzWDmfiw
Attic Floor: https://youtu.be/O3s64VmlK_c
grazie