90015 Cefalรน, Province of Palermo, Italy
Commerciale - B&B
Descrizione
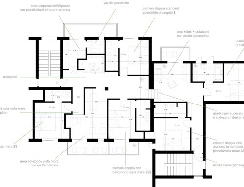
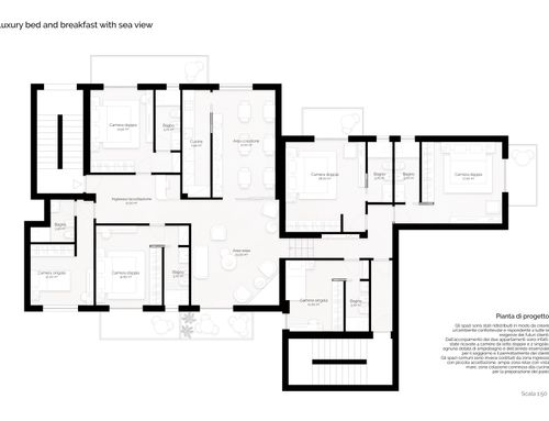
The apartments are located in Cefalรน, a seaside touristic village, some rooms have the sea view (marked with the numbers 1, 2, 3, in the floor plan).
The two apartments have one adjacent wall, but belonging to two buildings and two separate condominiums each with its own entrance, both apartments are
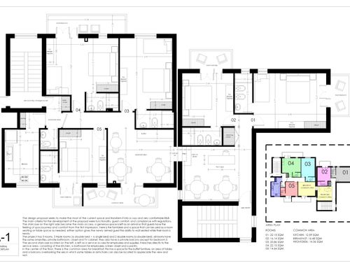
located on the third floor, three rooms currently with sea view (precisely the rooms 1,2,3), I would like to create a bed and breakfast with elevate standard of conforts, at least three stars, so each room must have a PRIVATE BATH, in addition to the rooms and breakfast room I would like guests to also have a common area, a living room, perhaps using a room with sea view to be able to give all guests the possibility,
even those who will stay in the rooms with city view, to have a sea view
The two apartments can be connected but only through a 90/100 cm wide passage, it is not possible to create larger openings, between the two apartments and
there is a difference in height of 60 cm
I would like the rooms to have white and light blue as the predominant colors, marine colors, a Mediterranean atmosphere,
between the choice of the maximum number of rooms possible and that of less room but more comfortable and of a higher level
I prefer the second option . it is my desire to amaze the guests.
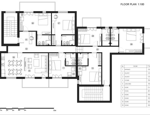
MINIMUM SIZE BY ITALIAN LAW FOR A 3 STAR BED AND BREAKFAST
The surfaces of the rooms, as a rule, are as follows:
๏ท 14 m2 of minimum surface area per double room, net of each room
accessory
๏ท 8 square meters of minimum surface area for a single room, net of each room
accessory
๏ท 6 sqm increase for the addition of a traditional type bed (80x190
cm)
Only in the case of the bed & breakfast, the kitchen must measure 6 sq m + 0.5 sq m per
each person accommodated.
The room used as a breakfast room, must measure 1 square meter for each
person housed.
Thank you,
Giuseppe
Gli appartamenti si trovano a Cefalรน, localitร turistico balneare, alcune camere hanno la vista mare (contrassegnate con i numeri 1, 2, 3, nella planimetria numerata).
I due appartamenti hanno parete adiacente, ma appartenenti a due palazzi e due condomini distinti ciascuno con il proprio ingresso, sono
situati al terzo piano, tre camere attualmente con vista mare (appunto le camere 1,2,3), vorrei realizzare un bed and breakfast di FASCIA ALTA, almeno tre stelle, quindi ogni camera deve avere il BAGNO PRIVATO, oltre alle camere e alla sala colazioni mi piacerebbe che gli ospiti avessero a disposizione anche uno spazio in comune, un salotto magari usando una camera con vista mare per poter dare la possibilitร a tutti gli ospiti anche quelli che soggiorneranno nelle camere con vista cittร , di poter avere la vista mare
I due appartamenti possono essere collegati ma solo attraverso un passaggio di 90/100 cm di larghezza, non รจ possibile creare aperture di dimensioni maggiori, tra i due appartamenti c'รจ un dislivello di 60 cm
Mi piacerebbe che le camere avessero come colori predominanti il bianco e il celeste, colori marini, un'atmosfera mediterranea, tra la scelta del massimo numero di camere realizzabili e quella di meno camera ma piรน confortevoli e di un livello piรน alto preferisco la seconda opzione. รฉ mio desiderio stupire gli ospiti.
Vi ringrazio, buon lavoro
Los apartamentos estรกn ubicados en Cefalรน, un centro turรญstico junto al mar, algunas habitaciones tienen vista al mar (marcadas con los nรบmeros 1, 2, 3, en el plano numerado).
Los dos apartamentos tienen paredes adyacentes, pero pertenecen a dos edificios y dos condominios separados, cada uno con su propia entrada,
ubicados en el tercer piso, tres habitaciones actualmente con vista al mar (precisamente las habitaciones 1, 2, 3), me gustarรญa crear un bed and breakfast de alta gama, ademรกs de las habitaciones y la sala de desayunos me gustarรญa que los huรฉspedes tambiรฉn tuvieran un espacio en comรบn, una sala de estar quizรกs usando una habitaciรณn con vista al mar para poder dar a todos los huรฉspedes la posibilidad, incluso a aquellos que se quedarรกn en las habitaciones con vista a la ciudad, de tener vista al mar.
Los dos apartamentos se pueden conectar pero solo a travรฉs de un pasillo de 90/100 cm de ancho, no es posible crear aberturas mรกs grandes, entre los dos apartamentos hay una diferencia de altura de 60 cm.
Me gustarรญa que las habitaciones tuvieran el blanco y el celeste como colores predominantes, colores marinos, un ambiente mediterrรกneo, entre la elecciรณn del mรกximo nรบmero de habitaciones posible y la de menos habitaciones pero mรกs cรณmodas y de mayor nivel, prefiero la segunda opciรณn. Deseo asombrar a los huรฉspedes.
Gracias, buen trabajo.