38010 San Michele all'Adige, Province of Trento, Italy
Residenziale - Appartamento
Descrizione
ENG
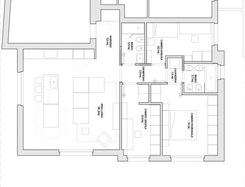
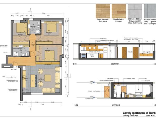
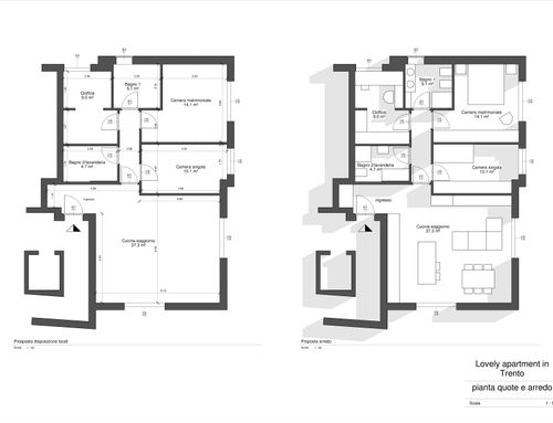
Hello! I kindly ask your advice to design our new apartment. The house is under construction, our apartment is that on the below side of the highlithed area, energy class A+, floor heating in all the home excluding the bathrooms wich will have a heated towel rail. The internal division was designed by manufacturer, but it can be eventually changed. The apartment is on the ground floor with a garden around. The style I prefer is nordic/scandivian/minimal/wood with neutral colors (white, grey, beige etc.). The material of the floors will be parquet (light wood color) in the bedrooms and "gres porcellanato" in the kitchen/living room and bathrooms.The internal division (3 bedrooms, 2 bathrooms and open space living room with kitchen) is fine for us.
The goal I would like to archive is:
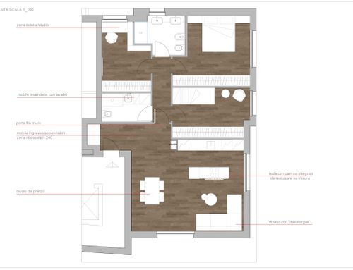
- open space living room with kitchen: I would like a kitchen with an island in the center and table with chairs, living room with a couch with chaise long and electric fireplace (see attached pictures).
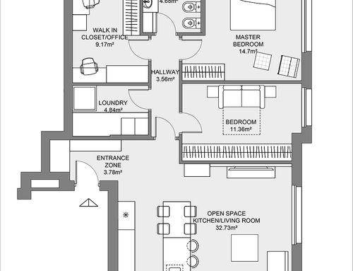
- master bedroom (14,7 square meters): I would like a wall cabine/cupboard
- single bedroom (9,17 square meters): I would like to organize a cloffice with a walking closet, office table and vanity table (see attached picture).
- single bedroom (11,36 square meters): baby room
- bathroom with window (4,68 square meter): I would like a big shower and double sink.
- bathroom without window (4,84 square meter): I would like a shower, small laundry (see attached pictures).
You will find the map and some pictures of forniture I like.
Thank you all, I'm looking forward to see your ideas.
Esther
ITA
Buongiorno! chiedo un vostro consiglio per arredare il mio nuovo appartamento. L'appartamento รจ in fase di costruzione, classe energetica A con riscaldamento a pavimento ad eccezione dei bagni dove saranno installati dei scalda salviette. La divisione interna รจ stata realizzata dal costruttore, ma puรฒ ancora essere modificata. L'appartamento si trova a piano terra con un giardino di proprietร .
Preferisco uno stile nordico/scandivano e minimal, mi piacciono i colori neutri (bianco, grigio, beige ecc.) ed il legno.Il pavimento delle stanze da letto sarร un parquet chiaro mentre nelle altre zone della casa verrร posato il gres porcellanato. La suddivisione interna (3stanze da letto, 2 bagni e l'open space) ci piace e vogliamo mantenerla.
I miei obiettivi sono i seguenti:
- open space con cucina con isola, tavolo allungabile e sedie, salotto con divano con chaise longe e camino elettrico (vedi foto allegate).
- camera matrimoniale (14,7 mq): mi piacerebbe avere un armadio a muro
- camera singola (9, 17 mq): vorrei creare un cloffice con cabina armadio, scrivania e vanity table
- camera singola (11,36 mq): camera per neonato
- bagno con finestra (4,68 mq): mi piacerebbe avere una grande doccia e doppio lavandino
- bagno cieco (4,84 mq): doccia e una piccola lavanderia (vedi foto allegate)
In allegato la planimetria e alcune foto di arredamenti/mobili che mi piacciono.
Grazie a tutti per partecipare al contest e non vedo l'ora di scoprire le vostre idee.
Esther