
Turin, Metropolitan City of Turin, Italy
Residenziale - Loft
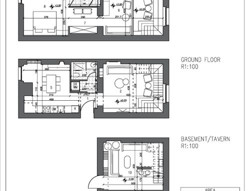
Descrizione
In uno spazio parzialmente soppalcato con soletta e in parte con carpenteria metallica intendo realizzare un volume abitativo completo. Gli spazi devono essere adeguati ad ospitare cucina, zona pranzo, soggiorno relax, tv e zona conversazione, piccolo spazio per lavanderia, due bagni di cui uno almeno con antibagno nella zona giorno, cabina armadio/spogliatoio, zona studio con divano letto, seminterrato da adibire a taverna salotto e utilizzabile all’occorrenza come zona notte con almeno due posti letto. In uno dei due bagni la doccia deve essere piuttosto grande e comoda.
Lo stile deve essere molto caratterizzato high-tech e industriale con uso di metallo e legno. Vorrei un utilizzo “originale” delle scale verso il soppalco ed anche verso il seminterrato. La scala stessa o altra struttura deve anche rendere accessibile la finestra del soggiorno.
La parte di soppalco in carpenteria metallica sopra il soggiorno è modificabile in altezza e si può estendere, mentre non lo è la parte sopra la cucina in quanto soletta muraria. La zona indicata in planimetria come “non calpestabile” è un bagno ed è in corrispondenza a quello del piano inferiore. Il riscaldamento è autonomo con caldaia interna collocata nella cucina.
Non si possono modificare i serramenti esterni e vorrei “salvare” il pavimento in legno esistente piuttosto recente magari ammodernandolo con qualche trattamento.
L’unico punto in cui si può “bucare” la volta dello scantinato è nell’angolo a sx verso il muro esterno che corrisponde al passaggio evidenziato dal cerchio nella foto della cantina. Lo spazio interrato in planimetria corrisponde all’intera superficie indicata nella planimetria come soggiorno e misura oltre 5x4 m ed è alta 2,80 m.
In a partially mezzanine space partly with slab and partly with metal carpentry, I intend to create a complete housing volume. The spaces must be adequate to accommodate kitchen, dining area, relaxation living room, TV and conversation area, small space for laundry, two bathrooms, at least one with anteroom in the living area, walk-in closet / dressing room, study area with sofa bed, basement for use as a living room tavern and can be used as a sleeping area if necessary with at least two single beds. In one of the two bathrooms, the shower must be rather large and comfortable.
The style must be very high-tech and industrial with the use of metal and wood. I would like an "original" use of the stairs to the mezzanine and also to the basement. The staircase itself or other structure must also make the living room window accessible.
The part of the loft in metal carpentry above the living room can be changed in height and can be extended, while the part above the kitchen is not as it is a wall slab. The area indicated in the plan as "not walkable" is a bathroom and is in correspondence with that of the lower floor. The heating is autonomous with an internal boiler located in the kitchen.
The external doors and windows cannot be changed and I would like to “save” the fairly recent existing wooden floor, perhaps modernizing it with some treatment.
The only point where you can "pierce" the vault of the basement is in the left corner towards the external wall which corresponds to the passage highlighted by the circle in the photo of the basement. The basement space in the plan corresponds to the entire surface indicated in the plan as a living room and measures over 5x4 m and is 2.80 m high.