
Milan, Metropolitan City of Milan, Italy
Residenziale - Loft
Descrizione
**DESCRIZIONE IN ITALIANO ALLA FINE**
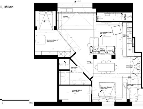
This project concerns the residential regeneration of a ex-garage in the De Angeli neighborhood in Milan. The result should be cheap & wow, also using alternative materials and innovative solutions, to foster sustainability and save on renovation costs. The loft should accomodate up to 6 people, and will be used as my secondary residence and short-term rental (AirBnb unique home).
About the BUDGET:
You are required to fit the whole project within 40K to 50K Euro, including:
- Remodelment and building costs
- Electrical, hydraulic, thermal systems
- Furniture
- Materials
I would prefer materials available IN STORE in the Milan Area, but I can evaluate also materials availble online (please provide links and take shipping costs in consideration). If you plan to build custom furniture (not recommended) take in consideration building costs to fit the budget. Furniture online is OK.
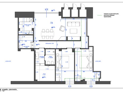
A note about the PIPES:
As you can see from the pictures, there are many pipes crossing the space (mostly heating of the condo). We can consider moving them (at least those covering the windows) but it's pretty expenisve. I'm preparing a pipes schema in the next few days to show their exact height (mostly 220cm).
PICTURES:
This is a link with the pictures of the space as today https://www.dropbox.com/sh/rewlq723s17zlku/AABUYGXPkcHZ_Bpq_pJuxXSqa?dl=0
Here is the floor plan in PDF format https://www.dropbox.com/s/3szb0vz81tvqnsq/rilievo%20caccialepori%20bozza.pdf?dl=0
This is an old plan with orientation https://www.dropbox.com/s/5cq30mqdzyibwkb/Plani%20Old.pdf?dl=0
*UPDATE 23/10/18
- New DWG and PDF with pipes schema
- Windows are @180cm from the floor
*UPDATE 9/11/18
-New panoramic pictures added
*UPDATE 24/10/18
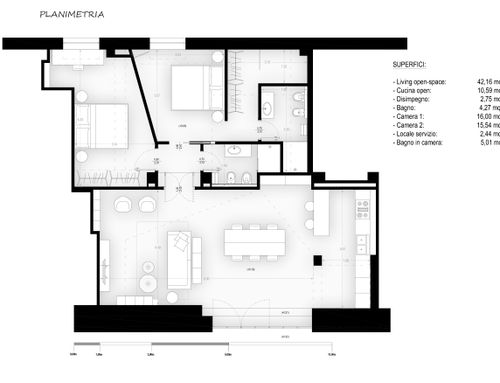
A note about heights: In order to convert this unit into a residential unit:
- We need to maintain a minimum average 270cm height in all the areas, excluding the restroom which can be average 240cm.
- We cannot create new windows.
- If we build new wall to separate a room, each room floor should have max 20 times the size of the window (glass to floor area ratio) assuming a proper artificial lightning, I would suggest to use different techniques to separate the rooms other than walls (if you use "removable" walls those limits are not mandatory)
**DESCRIZIONE IN ITALIANO**
L'obiettivo di questo progetto è la rigenerazione urbana di un ex-garage nel quartiere De Angeli di Milano. Il risultato deve essere sorprendente ma economico, utilizzando anche materiali alternativi ed innovativi, così da promuovere la sostenibilità e risparmiare sui costi di ristrutturazione. Il loft dovrà prevedere fino a 6 posti letto, e verrà utilizzato come mia residenza secondaria o per affitti brevi (AirBnB unique home).
Il BUDGET:
Il requisito è di poter finalizzare l'intero progetto tra 40 e 50 MILA euro, inclusi:
- I costi di ristrutturazione
- Gli impianti elettrico, termico e idrauilico
- Arredi
- Materiali
Preferirei materiali edili reperibili fisicamente in zona Milano, ma posso valutare anche materiali online (per favore inserire i link completi e prendere in considerazione anche i costi di spedizione). Se pensate di realizzare mobili su misura (non raccomandato) tenete in considerazione il budget. I mobili online sono OK.
Una nota sulle TUBAZIONI:
Il seminterrato è attraversato da alcuni tubi, possiamo prevedere di spostarli (costoso) oppure camuffarli. Potete trovare uno schema delle tubazioni in DWG tra gli allegati.
Immagini:
Lo spazio oggi https://www.dropbox.com/sh/rewlq723s17zlku/AABUYGXPkcHZ_Bpq_pJuxXSqa?dl=0
*AGGIORNAMENTO 23/10/18
- Le finestre sono a 180cm dal terreno
*AGGIORNAMENTO 24/10/18
- Vedere i requisiti per la rigenerazione urbana dei seminterrati su https://andrebonfanti.it/en/node/3
- Attenzione ai rapporti areoilluminanti, prevedere forse pareti simil removibili per ottemperare ai requisiti ASL
- Altezza media ponderata 270cm, tranne i bagni 240cm
*UPDATE 9/11/18
-Aggiunte foto panoramiche stato di fatto