
72014 Cisternino BR, Italy
Residenziale - Zona Giorno/Notte
Descrizione
**Aggiornamento del 12/04** : le porte le cambierò dunque le porte ad arco vanno eliminate
salve a tutti, ho una zona giorno di 40 mq., sistemare zona ingresso con guardaroba, zona camino con eventuale parete attrezzata, mi piacerebbe che la zona camino fosse dotata di divani. Nella zona camino e in cucina, preferirei mettere un pavimento in grès porcellanato chiaro rispetto a tutta la casa che sarà in parchet di colore chiaro.
Cucina abitabile con sistemazione di eventuale tavolo colazione/pranzo per 4 persone.
Nella zona giorno vorrei integrare un tavolo da pranzo quando si è in più' persone (6/8).
Mi piacerebbe trovare una migliore posizione per la TV.
Vorrei fare un lavoro di controsoffittatura per differenziare le varie zone del living, in modo da creare una nuova disposizione dei punti luce. (zona camino, zona ingresso)
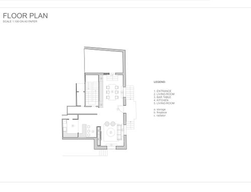
Informazioni riguardo la planimetria caricata:
- Dalla porta della cucina abitabile fino al muro dell'ingresso sono 4,8m
- Dalla finestra di zona camino fino alle scale del soggiorno sono 10,5m
- Dall'ingresso vedendo il muro a destra sono 3,5m
**********
** Update of 12/04 **: I will change the doors so the arched doors must be eliminated
Hi, I have a living area of 40sqm, arrange the entrance area with wardrobe, fireplace area with any equipped wall, I would like the fireplace area to be equipped with sofas. In the fireplace area and in the kitchen, I would prefer to put a light porcelain stoneware floor over the whole house which will be in light-colored parquet.
Eat-in kitchen with arrangement of a breakfast / lunch table for 4 people.
In the living area I would like to integrate a dining table when there are more people (6/8).
I would like to find a better position for the TV.
I would like to do a false ceiling work to differentiate the various areas of the living room, in order to create a new arrangement of the light points. (fireplace area, entrance area)
Information about the uploaded floor plan:
- From the door of the eat-in kitchen to the entrance wall it is 4.8m
- From the fireplace area window to the living room stairs are 10.5m
- From the entrance, seeing the wall on the right, it is 3.5m
**********
** Actualización del 12/04 **: Cambiaré las puertas por lo que las puertas arqueadas deben ser eliminadas
Hola a todos, tengo una superficie habitable de 40 metros cuadrados., Acomodo la zona de entrada con armario, zona de chimenea con cualquier pared equipada, me gustaría que la zona de chimenea esté equipada con sofás. En la zona de la chimenea y en la cocina, preferiría poner un suelo de gres porcelánico claro en toda la casa que será de parquet de color claro.
Cocina comedor con disposición de mesa de desayuno / almuerzo para 4 personas.
En la sala de estar me gustaría integrar una mesa de comedor cuando hay más personas (6/8).
Me gustaría encontrar una mejor posición para la televisión.
Me gustaría hacer un trabajo de falso techo para diferenciar las distintas áreas del salón, con el fin de crear una nueva disposición de los puntos de luz. (área de chimenea, área de entrada)
Información sobre el plano de planta cargado:
- Desde la puerta de la cocina hasta la pared de entrada es de 4,8 m
- Desde la ventana del área de la chimenea hasta la sala de estar, las escaleras son de 10,5 m.
- Desde la entrada viendo el muro de la derecha son 3,5 m