
33079 Sesto al Reghena, Province of Pordenone, Italy
Residenziale - Zona Giorno/Notte
Descrizione
ENG:
Hi everyone, I have a three bedroom property.
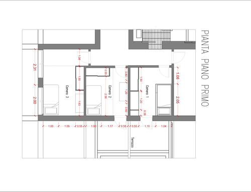
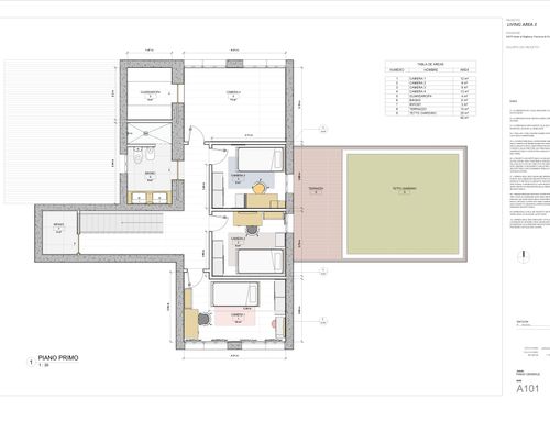
The rooms are small, there are two of 9 square meters and one of 12 square meters.
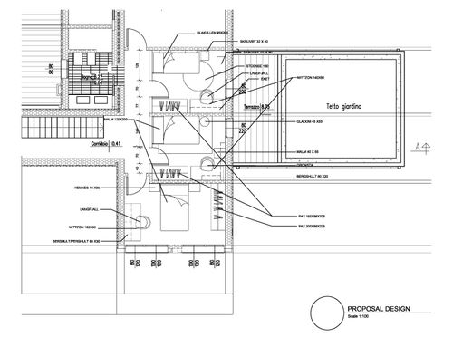
We need to maximize space. I would like to use furniture from Ikea or similar and minimize the use of custom-made furniture. We need to optimize all the spaces, including the height.
Plasterboard walls, suspended cabinets cannot be installed.
Room 1 for my daughter who is 19 years old
• Favorite color powder pink Pantone P59-1C
• There must be a sliding or hinged door wardrobe
• Desk maximum dimensions 170x70
• Desk chair
• Bookcase for books and objects
• Mirror
Room 2 for my daughter who is 17 years old.
• Favorite color Lavender Pantone 7443 C
• There must be a sliding wardrobe
• Desk maximum dimensions 140x60
• Desk chair
• Bookcase for books and objects
• Mirror
Room 1 for my son who is 10 years old.
• Preferred color Blue RAL 5019
• There must be a sliding wardrobe
• 140x60 desk
• Desk chair
• Bookcase for books and objects
• Mirror
SPA:
Hola a todos, tengo una propiedad de tres dormitorios.
Las habitaciones son pequeñas, hay dos de 9 metros cuadrados y una de 12 metros cuadrados.
Necesitamos maximizar el espacio. Me gustaría utilizar muebles de Ikea o similar y minimizar el uso de muebles a medida. Necesitamos optimizar todos los espacios, incluida la altura.
No se pueden instalar paredes de cartón yeso ni armarios suspendidos.
Habitación 1 para mi hija que tiene 19 años.
• Color favorito rosa empolvado Pantone P59-1C
• Deberá existir un armario con puertas correderas o batientes.
• Dimensiones máximas del escritorio 170x70
• Silla de escritorio
• Librería para libros y objetos.
• Espejo
Habitación 2 para mi hija que tiene 17 años.
• Color favorito Lavanda Pantone 7443 C
• Debe haber un armario corredizo.
• Dimensiones máximas del escritorio 140x60
• Silla de escritorio
• Librería para libros y objetos.
• Espejo
Habitación 1 para mi hijo que tiene 10 años.
• Color preferido Azul RAL 5019
• Debe haber un armario deslizante.
• Escritorio de 140x60
• Silla de escritorio
• Librería para libros y objetos.
• Espejo
ITA:
Salve a tutti, ho un immobile con tre camere da letto.
Le camere hanno sono piccole, ce ne sono due da 9 metri quadri e una da 12 metri quadri.
Dobbiamo massimizzare lo spazio. Vorrei usare mobili di Ikea o simili e ridurre al minimo l’uso di mobili su misura. Bisogna ottimizzare tutti gli spazi anche l’altezza.
Pareti in cartongesso, non si possono mettere pensili sospesi.
Camera 1 per mia figlia che ha 19 anni
• Colore preferito rosa cipria pantone P59-1C
• Bisogna che ci sia un armadio scorrevole o ad ante battenti
• Scrivania misure massime170x70
• Sedia per scrivania
• Libreria porta libri e oggetti
• Specchio
Camera 2 per mia figlia che ha 17 anni.
• Colore preferito Lavander Pantone 7443 C
• Bisogna che ci sia un armadio scorrevole
• Scrivania misure massime 140x60
• Sedia per scrivania
• Libreria porta libri e oggetti
• Specchio
Camera 1 per mio figlio che ha 10 anni.
• Colore preferito Blue RAL 5019
• Bisogna che ci sia un armadio scorrevole
• Scrivania da 140x60
• Sedia per scrivania
• Libreria porta libri e oggetti
• Specchio