
Pasiano di Pordenone, Province of Pordenone, Italy
Residenziale - living area
Descrizione
Casa singola con giardino su 3 livelli e su terreno di circa 1000 mq., anno 1980, confinante a nord e a ovest con strada lottizzazione, a est con palazzina, a sud con casa unifamiliare.
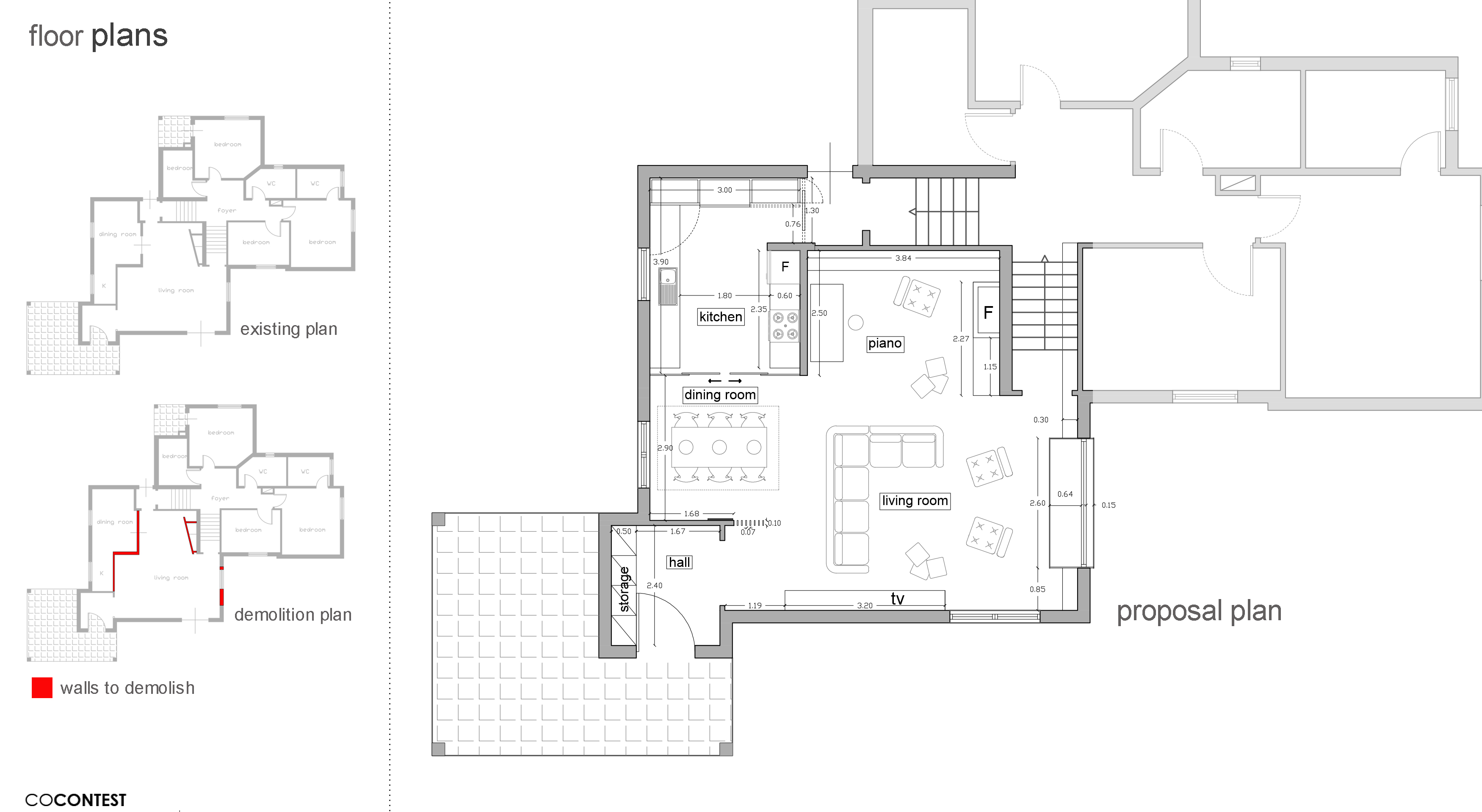
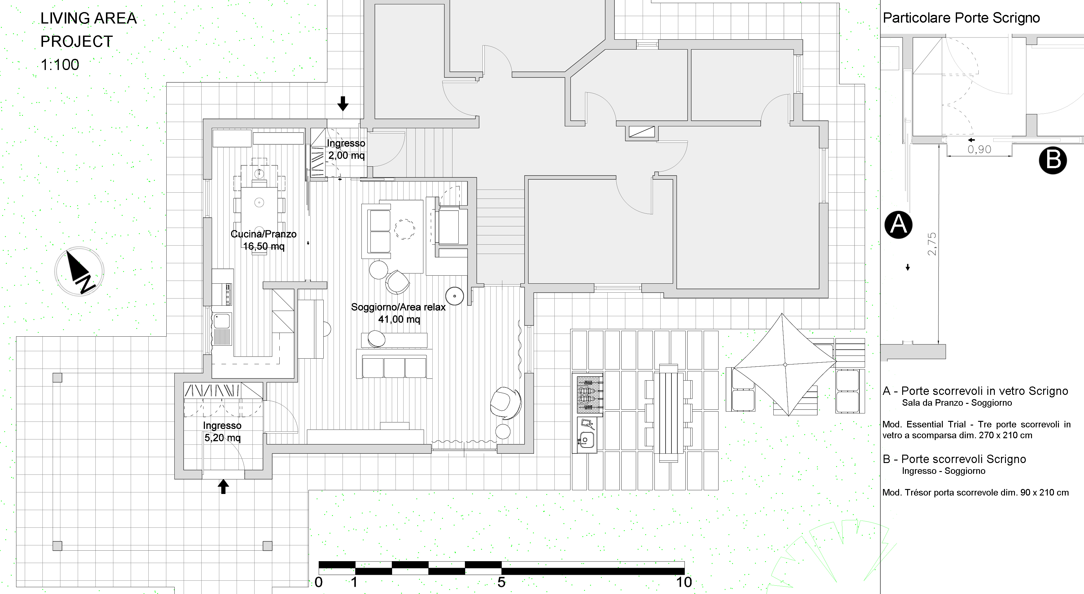
Acquistata nel 2001, vi abbiamo fatto ben poche modifiche, allego pianta originale con misure (fig.n°2) e stato attuale (fig.n.°1).
Vorremmo risistemare la zona giorno, rendendola più moderna e funzionale, ma allo stesso tempo calda e accogliente.
Vorremmo anche un'idea su come attrezzare lo spazio esterno (foto n°15) per poter mangiare all'aperto (tavolo,sedie,pavimentazione,eventuale copertura).
ELEMENTI NO : 1- AREA CAMINO - non piace per l'estetica,i colori e lo spazio che risulta freddo,spoglio e
inutilizzato anche perché è un'area di passaggio
2 - INGRESSO LATO OVEST- esteticamente carina, ma di fatto spazio poco utilizzato
3 - MANCANZA DI ARMADI CONTENITORI NEI 2 INGRESSI -scarpe e giacche creano caos
4 - PORTE E BATTISCOPA SCURI - opprimono la stanza
5 - AMBIENTE POCO LUMINOSO - risolto in parte con istallazione tunnel solare
6 - PAVIMENTO UN PO' FREDDO - anche se facile da pulire e antimacchia.
ELEMENTI SI : 1 - PARETE LIBRERIA - utile, sensazione di ordine, colori chiari.
2 - ANGOLO PIANOFORTE - utile, ci piace l'estetica pianoforte+quadri
3 - PARETE COTTURA - utile e raccolta
4 - PARETE CREDENZA-MOBILE A GIORNO - un tocco vintage dà carattere alla cucina.
COLORI SI : Bianco o panna, legno chiaro, qualche nota di nero, grigio, rosso. Continuità nei colori.
STILI SI : Nordico, moderno, lineare, con qualche elemento vintage e country chic.
PREFERENZE : Pavimenti in legno chiaro, porte e infissi interni bianchi o panna (da sostituire o
ridipingere).
Area cottura separata per evitare odori ( ma valutiamo anche altro).
Un tavolo grande per mangiare, lavorare o ricevere ( o 2 tavoli da poter accostare).
Piani di lavoro spaziosi in cucina.
MOBILI DA CONSERVARE : Parete libreria, pianoforte, almeno un elemento vintage (credenza o mobile a
giorno) SE POSSIBILE
CHIEDIAMO : Un'analisi delle POTENZIALITA' DEL NOSTRO SPAZIO.
Preferiremmo una soluzione degli spazi conservativa per ridurre i costi, ma siamo anche
disposti ad abbattere muri o a cambiare destinazione d'uso agli spazi se le vostre proposte
saranno interessanti.
Riorganizzazione degli spazi;
Modifica della parete/spazio camino;
Indicazione sui mobili (qualche mobile o elemento ricercato che dia carattere all'insieme)
indicazione su tendaggi, tapezzeria, tinteggiatura pareti,
indicazione illuminazione, punti luce;
organizzazione spazio esterno (in modo naturale, senza cementificare).
Grazie, attendiamo proposte.