
Salt Lake City, UT, USA
Residenziale - Loft
Descrizione
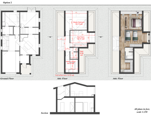
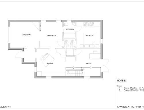
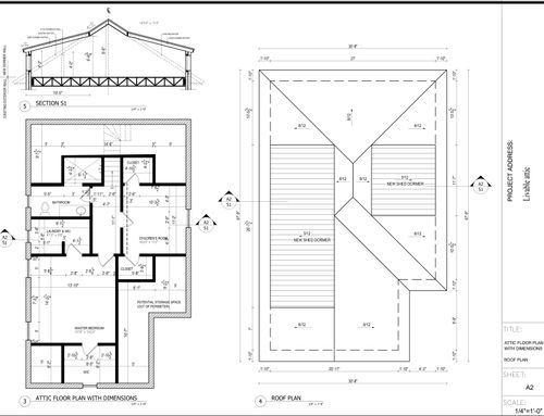
We would like to get the best floor plan for the attic which maximizes available space and INCLUDES a spot for a future staircase.
Space requirements:
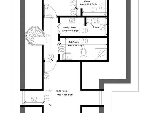
- master bedroom
- bathroom (toilet, sink, shower). Ideally should not be far from existing pipes of the main bathroom.
- laundry room together with walk-in closet
- kid's room
As-Is walls:
- main floor height: 117"
- height lower gable in the attic: 81"
- height at the middle of the attic: 104"
- external walls thickness: 10", brick
- internal walls thickness: 5"
Building code requirements:
- at least 50% of the attic space should have he height of at least 7.5 feet.
- staircase steps should be at least 32" wide
Additional options:
- As we see there are 3 options for a potential staircase ( highlighted in red on the picture). Fill free to come up with a better idea for a staircase.
- Dormers on sides and back side are possible ( no front facing dormers)
- Skylights are possible
- Swamp cooler and pipes can be moved beyond 4 feet wall
- Central post supporting rafters in the middles can be removed
Similar examples:
https://drive.google.com/drive/folders/1-32C8IxtcTHJmKUx41ZIGcvzV2bCHgku?usp=sharing