🔥 CYBER MONDAY 24H: -60% su tutti i prezzi del sito! Solo fino a mezzanotte. Usa il codice CYBERMONDAY25 👉🏼
home / concorsi / layout of the attic
img

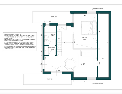
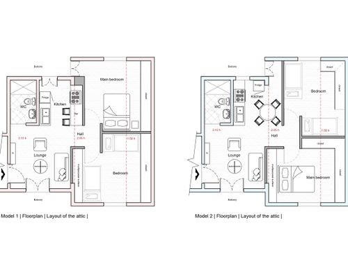
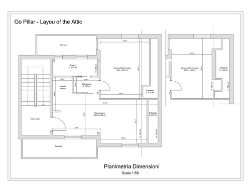
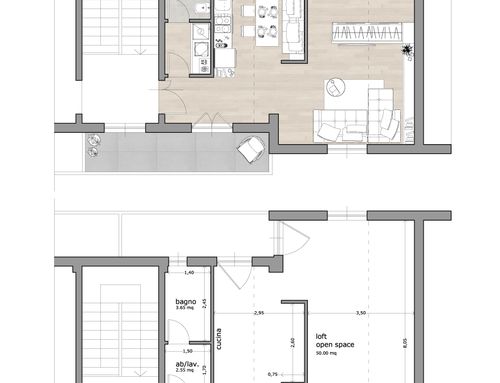
layout of the attic

Acireale, CT, Italia

Residenziale - Appartamento

  • 1° Posto € 80
  • 2° Posto € 27
  • 3° Posto € 13
  • 4° Posto € 7
  • 5° Posto € 7