
Parma, Province of Parma, Italy
Residenziale - Zona Giorno/Notte
Descrizione
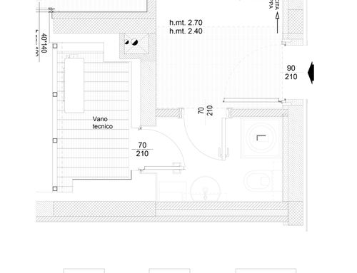
Vorrei ottimizzare gli spazi del piccolo ripostiglio per trasformarlo in una mini lavanderia con wc e lavabo ( già in mio possesso ma non ancora montati). Ci sono già gli attacchi per il wc e il lavabo. La porta finestra con vasistas affaccia su un balcone.
da montare (eventualmente in parte)
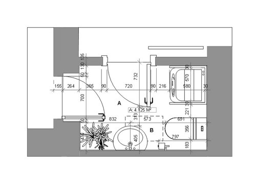
LAVABO Ideal Standard Connect sphere E7146 con sifone cromato a vista
RUBINETTERIA LAVABO Grohe essence 32898001
WC SCARICO A TERRA Idear Standard vaso Connect scarico a pavimento E803801 con sedile slim come capitolato
CASSETTA ESTERNA DI SCARICO Ideal Standard Cube in ceramica abbinata al wc
il budget è basso , la casa è in stile contemporaneo, il pavimento del soggiorno con cui confina il ripostiglio è di legno rovere. Le pareti sono in "bianco traffico " RAL 9016 , il pavimento del bagno è in bianco (60x60 MIHIM Marazzi).
deve essere prevista una parte di armadietti per i detersivi.
***************************************************
I would like to optimize the space of the small closet to turn it into a mini laundry with toilet and sink (already bought but not yet assembled). There are already the connections for the toilet and the sink. The glass door with vasistas overlooks a balcony.
to be assembled (possibly partly)
WASHBASIN Ideal Standard Connect sphere E7146 with visible chrome siphon
WASHBASIN FITTINGS Grohe essence 32898001
WC GROUND DISCHARGE Idear Standard Connect floor drain kit E803801 with slim seat as specifications
EXTERNAL EXHAUST BOX Ideal Standard Ceramic Cube combined with toilet
the budget is medium/low, the house is in contemporary style, the floor of the living room with which it borders the storage room is made of oak. The walls are in "white traffic" RAL 9016, the bathroom floor is in white (60x60 MIHIM Marazzi).
A part of detergent cupboards must be inluded.
SI RACCOMANDA DI CONSIGLIARE IL PIU' POSSIBILE ARREDI STANDARD MADE IN ITALY
AS POSSIBLE SUGGEST FORNITURE FROM ITALY