
Rorschach, Switzerland
Residenziale - Loft
Descrizione
Intro:
- The key asset of the flat is the lake view.
- We would like to make full use of the view
- the sleeping rooms further into the loft should not be blocked from the view either
- The windows / doors to the lake can be fully slided open for 50% (2 panels, 1 sliding)
What is already in and does NOT need to be designed (but please render it):
- kitchen
- bathrooms / showers
- floor (there are floor outlets for plugs, please see plan)
What will be done:
- one guest room will be added
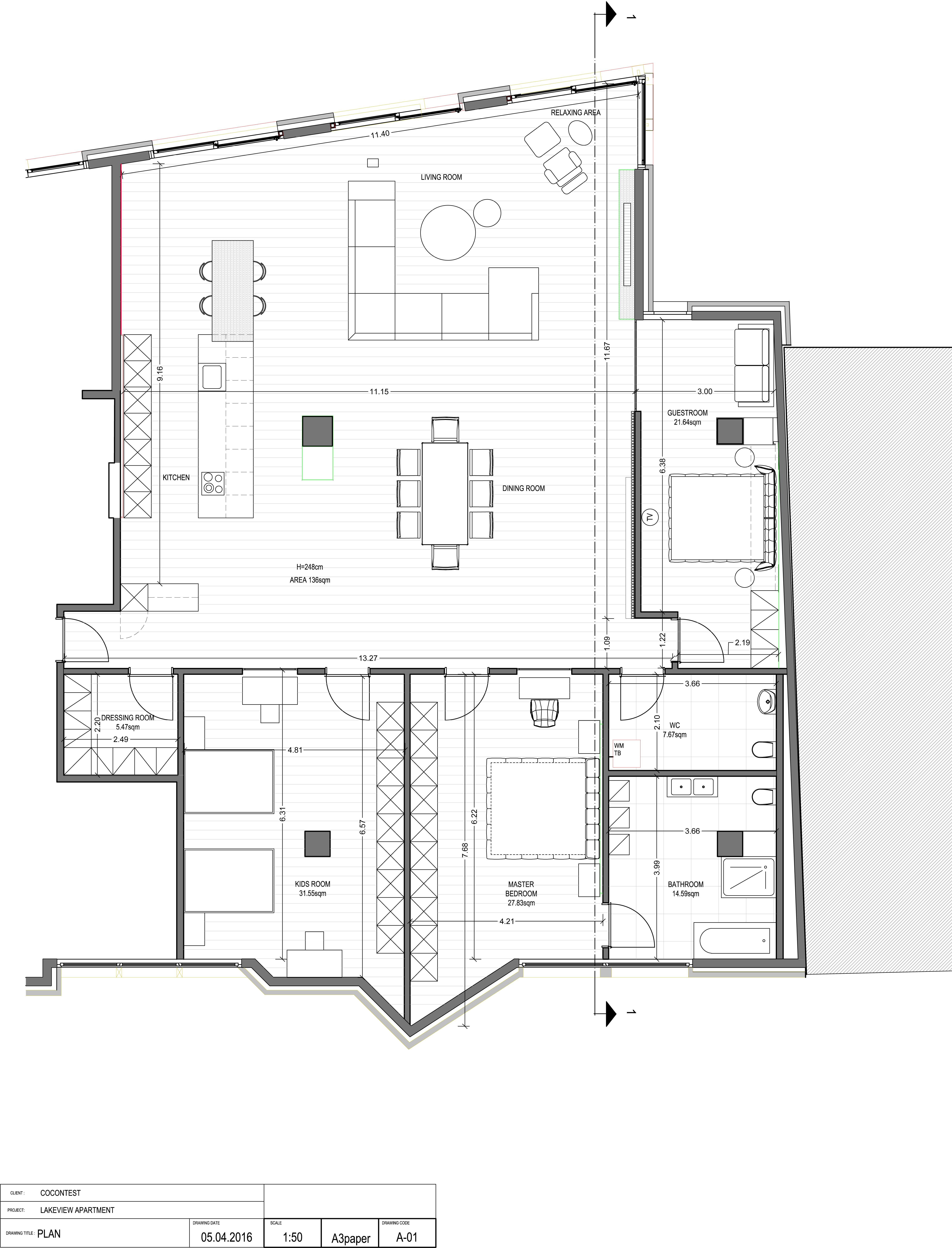
Details / plan: attached is a DWG
Room height:
- 248cm in loft part
- 246cm in sleeping rooms
The furniture on the pictures is from homestaging, so please start from scratch
Brief:
- Please use modern, stylish concepts.
- Not too fancy, should feel cosy but stay on the modern side.
- we are a family with 2 kids (5+8, boy and girl).
Some inspirations on Pinterest (also copied below in "References"):
- http://pin.it/zYBSnK1
for kids room:
- http://pin.it/a4S0H8P
DOS:
- we fancy modern Italian design (e.g. put in a Flos Arco that we will bring with us)
- use the space to place nice lamps (floor and ceiling), use cover fluters
- mirrors on some walls to visually extend the space (maybe use mirrored wardrobes for that?)
Furniture to be considered:
- cupboards should be ceiling high, fully embedded
- large sofa to chill out and view the lake:
should be one integrated piece shaped as a U, but with one side as a chaise longue extension (see PInterest / References)
- please add a breakfast / bar table as extension of the kitchen towards the windows
(using higher bar chairs to enjoy the view while having a drink / breakfast) => please see picture at PInterest / References below
DON'TS:
- forget the pool table and the solo standing bar table, they will go away and should not be replaced
- do not make too much use of carpets (there is floor heating)
Gadgets / facilities:
- add an ethanol fireplace (see references / Pinterest), can also be used to separate some space, or put towards wall to not block the view
- TV should be in the guest room and not in the large room
Rooms to equip with:
1.) open space area:
- kitchen + living + reading + chill out zone
2.) newly built guest room:
- queen sized bed + sleep over sofa for 2
- please render with an inside window as the other rooms (to leave in more light and to enable a view on the lake for the guest room)
3.) parents' bedroom: the one in the middle
- Large double bed 180-200cm
- should also have a small home office area
4.) kids bedroom (the larger room towards the exit for both kids)
- plan for 2 single 120-140cm beds (but no double beds)
- should also have a small desk for homework
5.) small dressing room (close to the exit)
Project is located in Europe, Switzerland, close to the German + Austrian border, not too far away from Italy.
So articles from Europe / these countries can be used.
Thanks for your project suggestions