
Donneloye, Switzerland
Residenziale - Zona Giorno/Notte
Descrizione
ENG
We have recently acquired this large 3-storey loft of about 270m2. The project in question concerns our room on the second floor.
It is accessed via a very scenic suspended staircase, which does not give us any intimacy, however:
- mission number 1, find a solution to add a door (downstairs is not possible). We are open to any idea : a glass greenhouse-type structure, in wood, in any material or form you think appropriate.
What we would like :
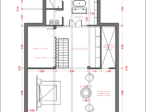
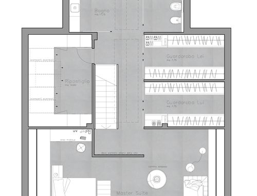
- an open space with our bathroom, walk-in wardrobe and bedroom
- in the part I have called "A", I was thinking of making an enclosed room for changing wardrobes or to put bulky things in
- the bathroom should have a large shower, toilet, bidet, double sink and a free standing bathtub
- as you can see from the photos, there is currently a wood-burning stove. We would like to take the opportunity and use the smoke outlet to put in a designer stove
- the walk-in wardrobe must be nice and big
- obviously the darker beams (the previous owner had painted them like this) will be sanded.
The style :
I am also attaching some photos of the rest of the house (still under renovation) so that you can understand the mood we have decided to give the house. We don't have a fixed idea in mind for the room, so if you like it, take inspiration from the rest of the house :) The important thing is that it's not a 'typical Swiss' style, because since it's our house where we live every day and not a chalet in the mountains for the holidays, we would like it to be quite sober, modern and not 'Christmasy'.
Important information:
- the entire floor will be redone, maximum height in the middle 4.5m
- the bathroom must necessarily be in the northern part as the drains and water inlets are already provided.
- we cannot make additional openings
Please do not hesitate to contact me for any additional information :)
Thank you,
Lorena
-----------------
ITA
Abbiamo recentemente acquisito questo grande loft su 3 piani, di 270m2 circa. Il progetto in questione riguarda la nostra camera al secondo piano.
Vi si accede tramite una scala sospesa molto scenografica, che pero' non ci da nessuna intimità :
- missione numero 1, trovare una soluzione per aggiungere una porta (giu' non è possibile). Siamo aperti a qualsiasi idea : una struttura in vetro tipo serra, in legno, in qualsiasi materiale o forma che pensiate opportuno.
Cosa vorremo :
- un open space con il nostro bagno, cabina armadio e camera
- nella parte che ho chiamato "A", stavo pensando di realizzare una stanza chiusa per il cambio armadio o per mettere delle cose ingombranti
- il bagno deve avere una doccia grande, water, bidet, doppio lavandino e una vasca da bagno "free standing"
- come potete vedere dalle foto, attualmente c'è una stufa a legna. Vorremmo cogliere l'occasione e sfruttare lo scarico fumi per mettere una stufa di design
- la cabina armadio deve essere bella grande
- ovviamente le travi piu' scure (il precedente proprietario le aveva verniciate cosi) saranno levigate.
Lo stile :
Vi allego anche delle foto del resto della casa (ancora in ristrutturazione) in modo da farvi capire il mood che abbiamo deciso di dare alla casa. Non abbiamo un'idea fissa in mente per la camera, quindi se lo gradite, prendete ispirazione dal resto della casa :) L'importante è che non sia uno stile "tipico svizzero" perchè trattandosi della nostra casa in cui viviamo tutti i giorni e non uno chalet in montagna per le vacanze, la vorremo abbastanza sobria, moderna e non "natalizia".
Informazioni importanti:
- tutto il pavimento verrà rifatto a nuovo, altezza massima al centro 4.5m
- il bagno deve necessariamente essere nella parte nord in quanto gli scarichi e gli arrivi d'acqua sono già previsti.
- non possiamo fare aperture aggiuntive
Non esitate a contattarmi per qualsiasi informazione supplementare :)
Vi ringrazio,
Lorena