
73014 Gallipoli, Province of Lecce, Italy
Residenziale - Zona Giorno/Notte
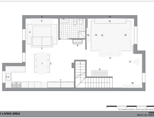
Descrizione
ENGLISH
In the living room I would like the window, the table and the cabinet with the mirror to remain. then I would like a piece of furniture equipped to rest the television with containers to preserve and have something on the wall that decorates it. I would also like to remove the chandelier and play with spotlights in the living room. In the kitchen, I would like the masonry kitchen to remain as the fireplace is inserted. I am also available to demolish the wall that separates with the room to make a single open space environment for the TV. I would like to eliminate the Frigo built-in to put a bigger fridge, the dining table is currently for 6 people but often we meet up with friends and I would like to find a way to have space to extend it without changing the position of the sofa and the view of the TV. The style of my house is a classic, but since I would like to change the sofas (or re-lining them), a modern touch wouldn't mind staying on warm colors.
--------------------
ESPAÑOL
En la sala me gustaría que la ventana, la mesa y el armario con el espejo permanecieran. Además, me gustaría un mueble equipado para descansar el televisor con contenedores para conservar y tener algo en la pared que lo decora. También me gustaría quitar el candelabro y jugar con focos de luz en la sala de estar.
En la cocina, me gustaría que la cocina de mampostería permanezca mientras se inserta la chimenea. También estoy disponible a demoler la pared que separa con el dormitorio para hacer un solo ambiente de espacio abierto para la TV. Me gustaría eliminar el Frigo incorporado para poner un refrigerador un poco más grande, la mesa del comedor es actualmente para seis, pero a menudo nos encontramos con amigos y me gustaría encontrar una manera de tener espacio para extenderlo sin cambiar la posición del sofá y la posición visual de la televisión. El estilo de mi casa es un clásico, pero como me gustaría cambiar los sofás (o volver a forrarlos), un toque moderno no me importaría, quedándose con colores cálidos.
--------------------
ITALIANO
NEL SOGGIORNO VORREI CHE RIMANGA LA VETRINA IL TAVOLO ED IL MOBILETTO CON LO SPECCHIO, POI VORREI UN MOBILE ATTREZZATO PER APPOGGIARE LA TV CON DEI CONTENITORI PER CONSERVARE ED AVERE SUL MURO QUALCOSA CHE LO DECORI, INOLTRE MI PIACEREBBE TOGLIERE IL LAMPADARIO E FARE UN GIOCO CON DEI FARETTI NEL SOGGIORNO, NELLA CUCINA VORREI CHE RIMANGA LA CUCINA IN MURATURA IN QUANTO E' INSERITO ANCHE IL CAMINO, SONO DISPONIBILE ANCHE A DEMOLIRE IL MURO CHE SEPARA CON LA STANZA PER FARE UN UNICO AMBIENTE OPEN SPACE PER LA TV. Vorrei eliminare l'incasso del Frigo per mettere un frigo un pò più capiente, il tavolo da pranzo attualmente è per sei ma spesso con gli amici ci ritroviamo e vorrei trovare il modo di avere spazio per prolungarlo senza modificare la posizione del divano e la posizione visiva della TV. LO STILE DELLA MIA CASA E' UN CLASSICO, MA DATO CHE VORREI CAMBIARE I DIVANI UN TOCCO DI MODERNO NON MI DISPIACEREBBE RIMANENDO SU DEI COLORI CALDI.