
Florence, Florence, Italy
Residenziale - living area
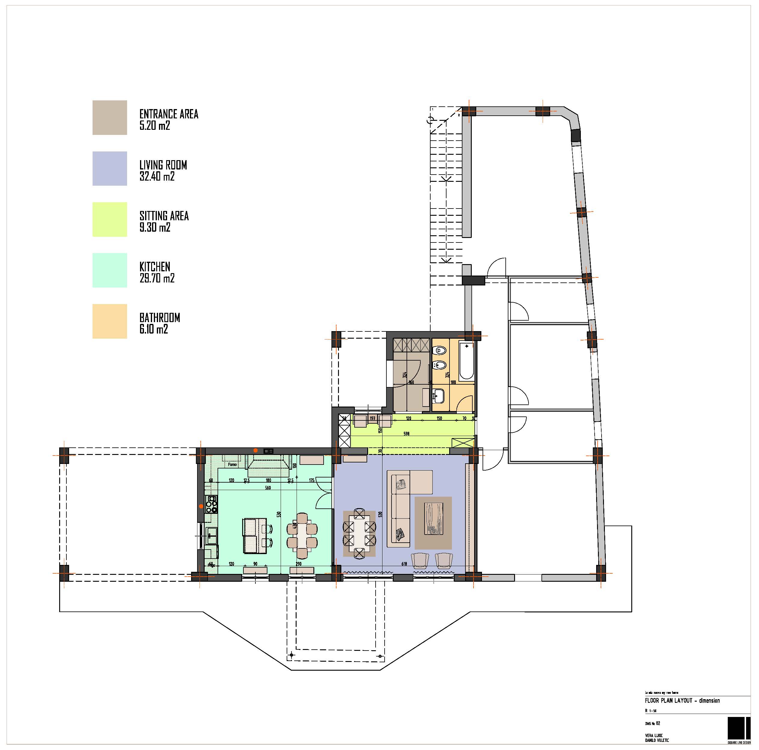
Descrizione
Salve, sto costruendo la mia nuova Casa e sto pensando di arredare il living in stile country. l'unico vincolo è la cucina, perché possiedo già i mobili , vi ho inserito una foto. vorrei eliminare la colonna copri caldaia che attualmente è sulla destra ed inserire una penisola in muratura.
Oppure , se possibile, modificare la mia cucina e realizzarla in muratura con le ante che già ho. La vorrei simile a quelle che ho inserito nelle foto, con penisola o isola.
Il camino lo preferirei come nelle foto, un camino da cottura alto(non è possibile spostare il camino perché è già presente sul solaio il passaggio della canna fumaria ) .
Sul lavabo della cucina ho inserito una piccola finestra per dare un pò di luce al piano. Non mi piace un openspace con la cucina, così ho già inserito un divisorio con una grande porta a 2 ante.sul salotto preferirei un Angolo tv, come ho già impostato io sulla pianta, con un grande divano ad angolo, oppure un divano e 2 poltrone. se si potrebbe creare una parete in mattoncini nell'angolo tv .
Ci dovrà essere una grande finestra come quella già inserita e dei archi o finiture in mattoncini, ad esempio la porta della cucina. se era possibile, anche aggiungere un angolo conversazione. nell'ingresso, invece, creare un armadio a muro e inserire una porta prima di entrare nel grande salone, così da limitare le correnti d'aria quando si entrerà a casa. se ci starebbe bene creare anche dei movimenti in cartongesso come una controsoffittatura nell'angolo tv o cose simili.per i pavimenti, niente parquet. la zona notte dovrà essere collegata tramite una porta.mi piacerebbe avere anche dei lampioncini lungo le pareti, oppure delle lampade a terra. Stavo pensando, inoltre, di aggiungere un grande arco in mattoncini sulla trave e i due pilastri nell'openspace.