09170 Oristano, Province of Oristano, Italy
Residenziale - Appartamento
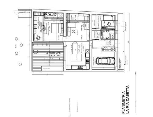
Descrizione
Numero di membri della famiglia: 3 (due adulti un minore adolescente)
Quello che si vorrebbe ottenere:
- 2 camere letto, di cui una con piccolo servizio igienico dedicato (doccia, wc e lavabo)
- 1 servizio padronale (doccia, wc, bidet e lavabo)
- 1 cucina abitabile; considerato che si ama cucinare e ospitare amici si pensava ad una cucina spaziosa e funzionale ed uno spazio esterno organizzato (pergola)
- 1 locale per dispensa compreso spazio lavanderia/stireria
- 1 spazio studio (piccola postazione dove operare con un pc - anche inserito nell'arredamento)
- L’Impianto elettrico sarà completamente domotico; I punti luce saranno a led
- Previsto impianto fotovoltaico sopra il tetto (gli apparati tecnologici - inverter, quadro, batteria di accumulo etc - potrebbero essere alloggiati, opportunamente sistemati, nella corte del prospetto anteriore dove sarebbe possibile inserire una sorta di separazione/recinzione)
- L’impianto clima sarà di tipo chiller con mobiletti a terra (necessario pertanto prevedere locale tecnico);
- I muri portanti centrali non possono essere manomessi, possibile modificare prospetto fronte strada con (eventualmente) apertura nuova finestra e contestuale riduzione della esistente; il prospetto interno (lato giardino) può essere modificato solo sul lato sinistro (dove sono presenti già due finestre)
- Le pareti interne possono essere realizzate in cartongesso (preferibile);
- Considerate l’altezza interna saranno installati controsoffitti in cartongesso
- Gradito collegamento con locale garage (porta scorrevole liscia, invisibile, a filo o inserito nell’arredo)
- Riorganizzando gli spazi interni si vuole ottenere sicuramente maggiore luminosità (elemento fondamentale)
- Sono graditi gli ambienti open space, se possibile;
- Sono graditi armadi a muro, nelle camere o nei corridoi, per massimizzare lo spazio anche in verticale.
STILE MODERNO