🔥 CYBER MONDAY 24H: -60% su tutti i prezzi del sito! Solo fino a mezzanotte. Usa il codice CYBERMONDAY25 👉🏼
img

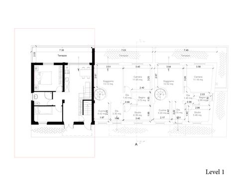
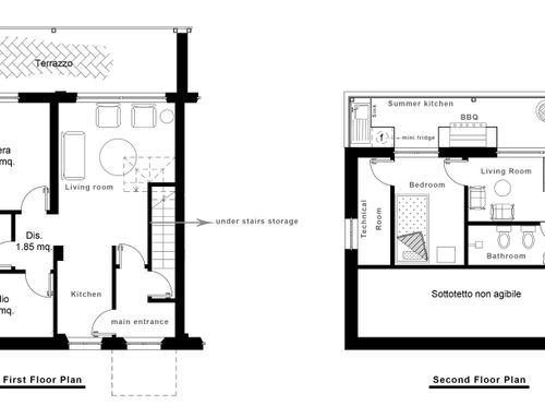
double home

57034 Campo nell'Elba, Province of Livorno, Italy

Residenziale - Appartamento

  • 1° Posto € 168
  • 2° Posto € 56
  • 3° Posto € 28
  • 4° Posto € 14
  • 5° Posto € 14