
Milan, Metropolitan City of Milan, Italy
Residenziale - Appartamento
Descrizione
ENG:
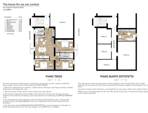
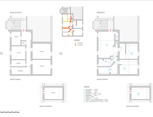
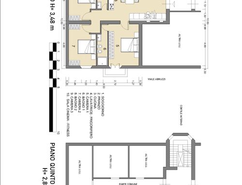
I intend to renovate an apartment of just under 100 square meters, plus a room located in the attic of the building called cellar on the attached map but in reality it is an attic 2.83 meters high with a window overlooking viale Abruzzi
The apartment is located on the third floor of a building located in the center of Milan, built in the thirties.
I would like the spaces to be redesigned to make the apartment modern and functional for the needs of a 26-year-old boy.
The spaces are composed as per the attached plans and for the main apartment I would like it to be redesigned with a view to space efficiency by inserting a second bathroom.
The attic room, with a window overlooking Viale Abruzzi, could be used as a cinema or fitness room.
I have no other needs, and I leave the architects total freedom in designing the spaces and materials.
Thanks and good job
SPA:
Voy a reformar un piso de algo menos de 100 metros cuadrados, además de una habitación situada en el ático del edificio llamada bodega en el plano adjunto, pero en realidad es un ático de 2,83 metros de altura con una ventana que da a viale Abruzzi
El piso está situado en la tercera planta de un complejo residencial en el centro de Milán, construido en los años treinta.
Me gustaría que se rediseñaran los espacios para que el piso fuera moderno y funcional para un chico de 26 años.
Los espacios se componen según los planos adjuntos, y para el piso principal me gustaría que se rediseñara con vistas a hacer los espacios más eficientes insertando un segundo cuarto de baño.
La habitación del ático, con ventana a viale Abruzzi, podría utilizarse como sala de cine o gimnasio.
No tengo otros requisitos, y dejo a los arquitectos total libertad para diseñar los espacios y los materiales.
Gracias y buen trabajo
ITA:
Ho intenzione di ristrutturare un appartamento di poco meno di 100 mq , oltre una stanza situata nel solaio dell'immobile chiamata nella piantina allegata cantina ma in realtà è un sottotetto alto 2,83 metri con finestra che affaccia su viale Abruzzi
L'appartamento è situato al terzo piano di un condominio situato al centro di Milano, realizzato negli anni trenta.
Vorrei che gli spazi fossero riprogettati per rendere l'appartamento moderno e funzionale all'esigenza di un ragazzo di 26 anni.
Gli spazi sono composti come da planimetrie allegate e per l'appartamento principale vorrei che venisse riprogettato in un ottica di efficientamento degli spazi inserendo un secondo bagno.
La camera in solaio , dotata di finestra su viale Abruzzi, potrebbe essere adibita a sala cinema o fitness.
Non ho altre esigenze, e lascio agli architetti totale libertà di progettazione degli spazi e dei materiali.
Grazie e buon lavoro