
70029 Santeramo in Colle, Metropolitan City of Bari, Italy
Residenziale - Zona Giorno/Notte
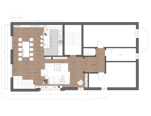
Descrizione
ENG VERSION
I would like to furnish and manage the spaces of the living area, lounge, smaller attic kitchen overlooking the lounge, I would like to make better use of the spaces with modern and functional solutions (design elements would be highly appreciated), furnish the basement, create areas where you can welcome guests, areas where you can relax and entertain. I would also like advice on lighting and wall finishes. I have no problem breaking down walls or raising new ones or moving the existing kitchen
SPA VERS:
Me gustaría amueblar y administrar los espacios de la sala de estar, el salón, la cocina más pequeña del ático con vistas al salón, me gustaría aprovechar mejor los espacios con soluciones modernas y funcionales (los elementos de diseño serían muy apreciados), amueblar el sótano , cree áreas donde pueda recibir invitados, áreas donde pueda relajarse y entretenerse. También me gustaría recibir consejos sobre iluminación y acabados de paredes. No tengo problemas para derribar muros o levantar nuevos o mover la cocina existente
ITA VERS:
vorrei arredare e gestire gli spazi della zona giorno, salone, cucina, più piccola mansarda che si affaccia sul salone, mi piacerebbe sfruttare meglio gli spazi con soluzioni moderne e funzionali (molto apprezzati sarebbero elementi di design), arredare il sottoscala, creare zone dove poter accogliere gli ospiti, zone dove potersi rilassare e intrattenersi. vorrei anche consigli sull'illuminazione e sulle finiture dei muri. non ho problemi ad abbattere muri o ad alzarne di nuovi o a spostare la cucina esistente