
Livorno, Province of Livorno, Italy
Residenziale - Casa
Descrizione
🇮🇹
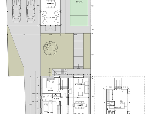
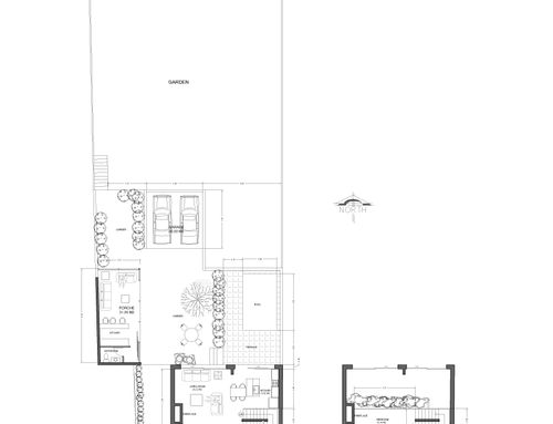
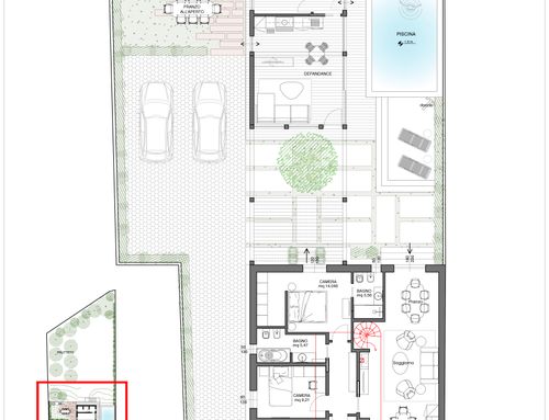
La casa si trova in periferia, vicino alla campagna. Mi piacerebbe darle uno stile rustico/moderno tipo villa americana. Vorrei avere un ampio soggiorno/salotto con cucina, tre camere da letto e due bagni. Gradirei avere un bagno con la doccia e uno con la vasca. Se fosse possibile mi piacerebbe ricavare nella camera matrimoniale una cabina armadio (opzione facoltativa). Nella casa è presente un camino che mi piacerebbe mantenere, rivedendolo però completamente sia come stile sia come funzionalità . Non si possono creare nuove finestre sul lato destro e sinistro della casa, al massimo si possono ampliare le esistenti o creare nuove aperture davanti e dietro. Non ho un'idea precisa su come riconfigurare gli ambienti interni; per questo motivo sono aperto a qualsiasi tipo di soluzione, nel rispetto dei gusti che vi ho trasmesso. E' presente un seminterrato che vorrei dedicare a zona lavanderia. La casa ha anche un piazzale (con un box che verrà demolito) e un ampio giardino. Nello spazio esterno mi piacerebbe ricavare: 1) un parcheggio per le macchine; 2) una veranda vetrata con cucina, bagno e soggiorno, utilizzabile sia in estate sia in inverno; 3) una piscina.
🇬🇧
The house is in the suburbs, close to the countryside. I would love the house to have a rustic-modern style, like American-style villa. I would like to have a spacious living room with a kitchen, three bedrooms and two bathrooms, one with a shower and one with a bath. I would also like to have a walk-in wardrobe in the master bedroom (optional).
In the house there is a fireplace and I would like to change its style and features. It is not possible to build new windows on the right and on the left side of the house. At most, it is possible to enlarge the existing windows or to create new openings in the front or in the back of the house.
I have no specif ideas on how to re-elaborate the interiors of the house and that's why I am open to any solution, in accordance with my personal preference.
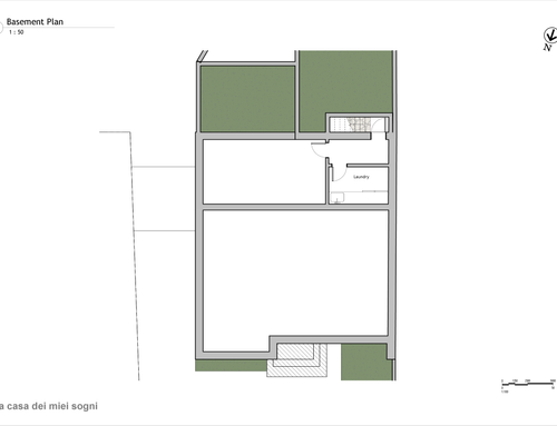
There is also a basement that I would like to be used as a laundry. The house has got a countryard (with a box that will be demolished) and a large garden. In the outside area I would like to have:
1) a car parking
2) a glass veranda with kitchen, living room and bathroom that can be used both in summer and in winter.
3) a swimming pool