
Capriate San Gervasio, BG, Italia
Residenziale - Stanza
Dear Client,
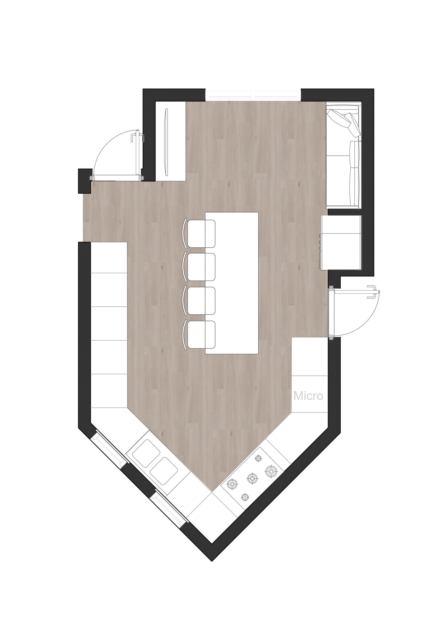
Thank you for your exciting project. In the kitchen renovation, the sink, stove, and microwave have been kept in their original positions without any changes. I only added an oven below the microwave. As you can see in the renders, I considered two options for the cabinet design: the first option places shelves on the right side, which helps make the kitchen appear larger, and the second option uses cabinets. I removed the central table and replaced it with a counter, around which you can sit and dine or socialize, and you can also use the space underneath as cabinets, which is very practical. I placed the antique buffet opposite the sofa, so you can place the TV on it. This way, the kitchen design remains modern and uniform, while the buffet serves as a unique antique piece in a corner.
I have uploaded the kitchen design via the link below, as the file was too large to upload directly. You can download the 3D project from this link.
https://www.mediafire.com/file/8tils82ue8yga6h/2.fbx/file
I have selected two hood options for you. You can either install a countertop hood or a built-in hood that fits inside the cabinet, which enhances the kitchen’s aesthetic even more.
Thank you for your attention.
Gentile Cliente,
Grazie per il vostro interessante progetto. Nella ristrutturazione della cucina, il lavello, il fornello e il microonde sono rimasti nelle loro posizioni originali senza alcuna modifica. Ho aggiunto solo un forno sotto il microonde. Come potete vedere nei rendering, ho previsto due opzioni per il design dei mobili: la prima opzione prevede scaffali sul lato destro, che aiutano a far sembrare la cucina più grande, e la seconda opzione prevede armadietti. Ho rimosso il tavolo centrale e l’ho sostituito con un bancone, intorno al quale potete sedervi e mangiare o socializzare, e potete anche utilizzare lo spazio sottostante come armadietti, molto pratico. Ho posizionato il buffet antico di fronte al divano, così potete mettere la TV sopra di esso. In questo modo, il design della cucina rimane moderno e uniforme, mentre il buffet funge da pezzo antico unico in un angolo.
Ho caricato il progetto della cucina tramite il link sottostante, poiché il file era troppo grande per essere caricato direttamente. Potete scaricare il progetto 3D da questo link.
https://www.mediafire.com/file/8tils82ue8yga6h/2.fbx/file
Ho selezionato due opzioni per la cappa. Potete installare una cappa da piano cottura oppure una cappa incorporata che si inserisce all’interno del mobile, valorizzando ulteriormente l’estetica della cucina.
Grazie per la vostra attenzione.