
Naples, Italy
Residenziale - living area
Descrizione
Salve ,
Chiediamo il vostro aiuto per arredare la nostra villetta.
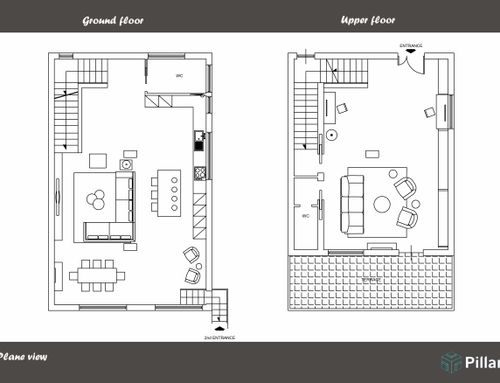
E' strutturata su tre livelli. Il primo vorremmo dedicarlo alla zona pranzo, cucina/living (piano semi-interrato), il secondo dedicarlo ad una zona soggiorno/studio, il terzo riservato alla zona notte è già completato.
Ci piacerebbe fossero privilegiate soluzioni comode, calde ed accoglienti senza sacrificare l'eleganza nei toni e negli arredi.
La villetta è circondata da un bel giardino. L'esterno è ancora da inventare... sarebbero graditissimi, se possibile, suggerimenti su come definire e rivalutare le facciate esterne.
E' possibile intervenire con lavori strutturali (solo se necessari).
PIANO seminterrato (tavernetta) :
- cucina
- divano
- angolo tv
Cucina/living:
Le componenti che non dovranno mancare nell'ambiente sono: isola o penisola, anche senza fuochi o lavandino, che funga da piano di lavoro, un grande piano d'appoggio con sgabelli per poter fare colazione, un tavolo per 6 persone.
Allo scopo inserisco foto di kitchen living open space che adoriamo (pinterest);
Lo spazio è aperto, senza divisioni murarie, vi chiedo cortesemente di prevedere una dispensa/ripostiglio.
Prevedere stufa a pellet.
Un divano con vista tv.
- PIANO SUPERIORE
- divano
- libreria
- tavolo/scrivania
- angolo computer
Piano superiore:
Il primo piano verrà utilizzato come soggiorno e studio, ci piacerebbe uno spazio sobrio ed elegante dove poter accogliere ospiti e poter lavorare;
se possibile prevedere un angolo coffee con un piccolo lavandino ( dove prevista l'impiantistica acqua,gas).
Gradirei ci fossero spunti anche per arricchire il soffitto essendo abbastanza alto.
Contattatemi per ogni chiarimento.
Grazie mille del prezioso aiuto.