
96013 Carlentini, Province of Syracuse, Italy
Residenziale - Appartamento
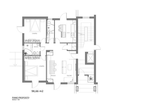
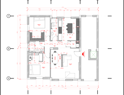
Descrizione
ENG VERS:
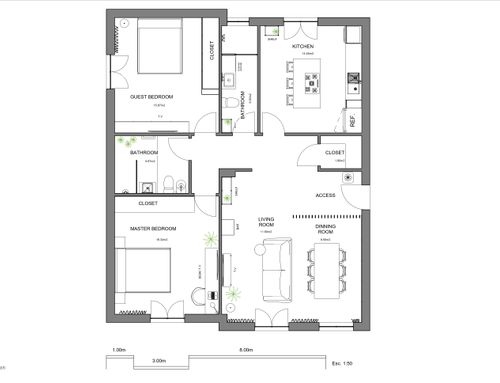
Hi I'm Stefano, I would like to furnish and a new apartment of 100 square meters consisting of an entrance hall with lounge, kitchen, 2 bedrooms, a large bathroom and a service bathroom.
My idea is to have a modern style environment with colors on gray, steel and dark brown wood. I imagine my future home as a warm, welcoming environment that recalls places where I have traveled, countries like Europe, China, Hong Kong, Dubai, Angola where I still live for work and Sicily, my country of origin , but always with a modern style.
1st room - lounge.
I imagine the lounge as a relaxation room with a large sofa, where you can welcome people, friends organize dinners on a large table and a dividing wall from the entrance made in a modern and wooden style.
2nd Room - Kitchen
I imagine the kitchen as the heart of the house, the main place. I imagine a kitchen with an island and not with a traditional table, but something like a bar.
3rd Room - Bedroom
A large bed with wardrobes / look at visible stuff, not with too many doors, where you can have your shoes on view. A mix between hotel and a clothing store.
4th room - bathroom
I imagine the bathroom full of light that recalls the sea and the heat, with a whirlpool tub.
Please note that the 3D View render must be for the Kitchen and lounge
12/07/2020
A detail for the kitchen that I have not mentioned previously is that the ovens must be column-mounted,
Another detail for the bedroom I would like to have a parquet
24/08/2020
After an inspection the layout of the bathroom has been changed, the whirlpool tub cannot be installed.
The option is to install a 120 x 80 CM shower
SPA VERS:
Hola, soy Stefano, me gustaría amueblar un nuevo apartamento de 100 metros cuadrados que consta de un hall de entrada con salón, cocina, 2 dormitorios, un baño grande y un baño de servicio.
Mi idea es tener un ambiente de estilo moderno con colores en gris, acero y madera marrón oscuro. Imagino mi futuro hogar como un ambiente cálido y acogedor que recuerda lugares a los que he viajado, países como Europa, China, Hong Kong, Dubai, Angola, donde todavía vivo y trabajo; y Sicilia mi región de origen. Pero siempre con un estilo moderno.
1 ª sala - salón.
Me imagino el salón como una sala de relajación con un gran sofá, donde puedes dar la bienvenida a las personas, organizar cenas con los amigos en una mesa grande y una pared divisoria desde la entrada hecha en un estilo moderno y de madera.
2da Habitación - Cocina
Me imagino la cocina como el corazón de la casa, el lugar principal. Me imagino una cocina con una isla y no con una mesa tradicional, sino algo así como un bar.
3ra habitación - dormitorio
Una cama grande con armarios / guardarropa visible, no con demasiadas puertas, donde puedes tener tus zapatos a la vista. Una mezcla entre hotel y tienda de ropa.
4ta habitación - baño
Me imagino el baño lleno de luz que recuerda el mar y el calor, con una bañera de hidromasaje.
Tenga en cuenta que la representación de la vista 3D debe ser para la cocina y el salón.
12/07/2020
Un detalle para la cocina que no mencioné anteriormente es que los hornos deben montarse en columnas,
Otro detalle para el dormitorio me gustaría tener un parquet
24/08/2020
Después de una inspección, se ha cambiado la distribución del baño, no se puede instalar la bañera de hidromasaje.
La opción es instalar una ducha de 120 x 80 CM
ITA VERS:
Salve sono Stefano, avrei intenzione di arredare e un nuovo appartamento di 100 mq circa formato da un entrata con salone, cucina, 2 camere da letto, un bagno grande e un bagno di servizio.
la mia idea è avere a disposizione un ambiente di stile moderno con colori sul grigio, acciaio e legno marrone scuro. Io immagino la mia futura casa come un ambiente caldo, accogliente che rievochi posti dove ho viaggiato, paesi come l’Europa, la china, Hong Kong, Dubai, l’Angola dove tutt’ora abito per lavoro e alla Sicilia paese mio di origine, ma tutto sempre con uno stile in chiave moderna.
1° Stanza - Salone.
Immagino il salone come una stanza di relax con un grande divano, dove accogliere le persone, amici organizzare delle cene su un grande tavolo e una parete divisoria dall’ingresso fatta in stile moderno e di legno.
2° Stanza – Cucina
La cucina la immagino come il cuore della casa, il posto principale. Immagino una cucina con l’isola e non con un tavolo tradizionale, ma qualcosa tipo bar.
3° Stanza – Stanza da letto
Un letto grande con degli armadi/guarda roba a vista, non con troppi sportelli, dove avere a vista le scarpe. Un mix tra hotel e un negozio di abbigliamento.
4° Stanza – Bagno
Immagino il bagno pieno di luce che richiami il mare e il calore, con una vasca idromassaggio.
Si prega di notare che il render 3D View devono essere per la cucina e il salone
12/07/2020
Un dettaglio per la cucina che non ho menzionato precedentemente è che i forni devono essere a colonna.
Un altro dettaglio per la camera da letto vorrei avere un parquet.
24/08/2020
Dopo un sopralluogo la disposizione del bagno è stata cambiata, la vasca idromassaggio non è possibile installarla.
L'opzione è di installare una doccia 120 x 80 CM