
73100 Lecce, Province of Lecce, Italy
Residenziale - Appartamento
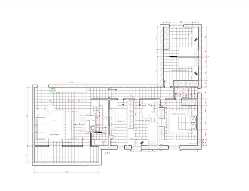
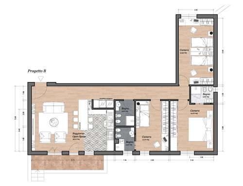
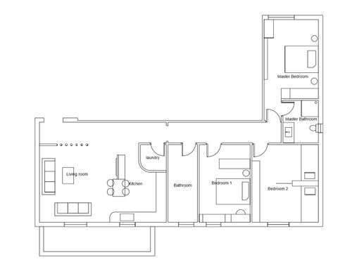
Descrizione
ENGLISH
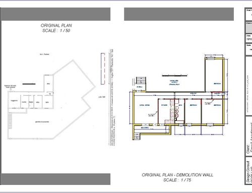
The apartment renovation must include:
DAY AREA
- Demolition of the partition wall between entrance/living room and kitchen
- Creation of an open space with open kitchen, division through the peninsula useful for breakfast/lunch and creation of a separated space (laundry)
NIGHT AREA
- Creation of a second bathroom instead of the current storage room with door opening in the room on the left (position: in front of the current storage door)
- Division of the current master bedroom (second room on the right) in 2 rooms with separate entrance; if the space isn't enough, we can keep the room as it is but separate the 2 beds with a room divider or similar item.
-------------------------
ESPAÑOL
La renovación del apartamento debe incluir:
ÁREA DE DÍA:
- Demolición del tabique divisorio entre entrada-sala de estar y cocina
- Creación de un entorno único con cocina abierta, división a través de la península útil para el desayuno/almuerzo y creación de un espacio reservado (lavandería)
ÁREA NOCTURNA
- Creación de un segundo baño en lugar de la sala de almacenamiento actual con la puerta abierta en la habitación de la izquierda (posición frente a la puerta de almacenamiento actual)
- División de la habitación doble actual (segunda habitación a la derecha) en 2 habitaciones con entrada independiente o, en ausencia de espacio necesario, solo habitación de lectura con separación en 2 ambientes con camas separadas o similar.
-------------------------
ITALIANO
La ristrutturazione dell’appartamento deve prevedere:
ZONA GIORNO:
- Abbattimento muro divisorio tra ingresso-soggiorno e cucina
- Creazione di unico ambiente con cucina a vista, divisione attraverso penisola utile per colazione/pranzo e creazione di uno spazio riservato (lavanderia)
ZONA NOTTE
- Creazione di un secondo bagno al posto dell’attuale ripostiglio con apertura porta nella stanza a sinistra (posizione di fronte attuale porta ripostiglio)
- Divisione dell’attuale stanza da letto matrimoniale (seconda stanza a destra) in 2 stanze con ingresso separato o, in assenza di spazio necessario, unica stanza da lette con separazione in 2 ambienti letto tramite separè o similare.