
Milan, Metropolitan City of Milan, Italy
Residenziale - Appartamento
Descrizione
ITALIAN & ENGLISH DESCRIPTION BELOW:
OBIETTIVO
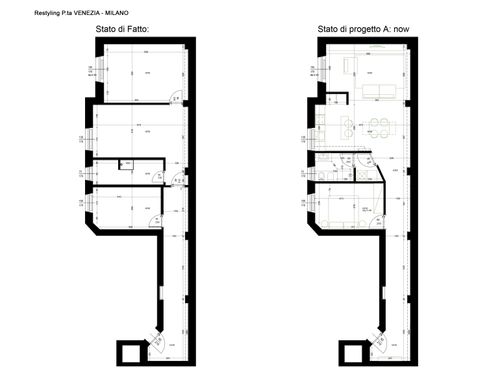
Si tratta di un progetto puramente di arredo. La disposizione delle stanze e dei muri è già definitiva e non serve ri-lavorarci. Attualmente sono in corso i lavori di ristrutturazione. Il focus del contest sarà sui render grafici per valutare materiali, colori e scelta degli arredi.
L’obiettivo di questo contest è quello di fornire una proposta di finiture e di arredi in linea con quanto richiesto, che dia un carattere unico all’appartamento, rispettando fattibilità e budget proposto.
LA CASA E CHI CI VIVRA’
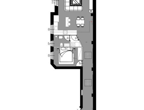
L’appartamento si trova a Milano, in zona Porta Venezia, all’interno di un edificio signorile di inizio anni ‘50, elegante e ben curato. L’obiettivo è dare all’appartamento uno stile fresco ed elegante, riuscendo allo stesso tempo ad inserire delle soluzioni di colori accesi che possano creare dei contrasti interessanti, rispecchiando lo stile del proprietario di casa.
Il proprietario è un ragazzo di circa 30 anni, sportivo e amante della buona cucina.
Ha deciso di dedicare molto spazio alla zona cucina e living, così da avere una spazio comodo dove poter cucinare e stuzzicare qualcosa insieme agli amici e una zona living dove potersi rilassare comodamente guardando la tv o leggendo un libro.
GLI SPAZI NEL DETTAGLIO:
1. LIVING
Un misto tra stile industrial ed eclettico, contraddistinto da contrasti di colori accesi (giallo, rosso, blu, etc).
Il pavimento caldo, in legno, così da poterci camminare a piedi scalzi.
Dev’esserci un divano comodo che possa accogliere due persone sdraiate per guardare un film comodamente.
Un mobile libreria è sicuramente utile (anche se non grandissimo - circa 50-100 libri).
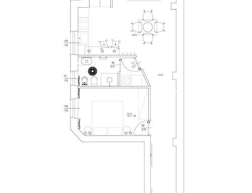
2. CUCINA
La cucina verrà posizionata sotto la finestra. Un piano di lavoro comodo e ampio è molto apprezzato, senza pensili al muro che rendono difficoltoso muoversi e lavorare i cibi. Sarebbe molto utile avere anche un piano dove poter comodamente stuzzicare del cibo e bere un drink, senza dover per forza apparecchiare un classico tavolo.
Da tenere a mente: la casa in futuro potrebbe venire trasformata in un trilocale, aggiungendo una seconda camera e unendo cucina e living in un solo spazio. Per questo motivo è meglio non inserire elementi fissi in cucina (ad esempio isole al centro) che un domani possano essere troppo ingombranti e quindi eliminate.
3. CORRIDOIO
Il corridoio è molto lungo ed è sicuramente uno spazio da valorizzare per dare unicità e carattere all’appartamento. In questo spazio, meglio focalizzarsi sull’aspetto estetico e di design rispetto alla praticità e possibilità di riporre cose (la casa sarà abitata da una persona sola). Niente armadiature ingombranti che rimpiccioliscono il corridoio. Meglio giocare con luce e colori e creare un accesso alla casa affascinante.
4. CAMERA DA LETTO
La camera da letto è di soli 12mq. L’importante è che sia una stanza fresca, con un colore chiaro che ne accentui lo spazio.
5. BAGNO
No vasca. Doccia comoda, almeno 100x80. Stile semplice, pulito e con colori chiari e freschi. Molto belle le mattonelle bianche. Non fate riferimento alla disposizione presente in planimetria. Sanitari, lavandino e doccia possono essere posizionati in qualsiasi posizione.
BUDGET E VINCOLi
- Il budget a disposizione, che comprende finiture e arredi, è di circa 30.000 Euro.
Non si prevede di acquistare pezzi di arredamento ricercati e/o molto costosi.
L’obiettivo è giocare con luci e colori al fine di creare un bell’effetto ma senza spendere grosse cifre.
- Il pavimento della casa è preferibile in legno. Per avere la possibilità di camminare scalzi in casa.
- Le finestre verranno recuperate. Sono in legno ed è possibile modificarne il colore.
MOODBOARD
https://drive.google.com/file/d/1qMEd8jgeH591RD6S9i5bVAPgX00Ojywu/view?usp=sharing
ENGLISH:
GOAL
It’s a 100% interior design contest. Planimetry is already final. Renovation works are currently ongoing. Rooms and walls location is already confirmed, as you can see from the planimetry attached.
This contest focuses on interior design: graphic renders to see materials, colors and furniture selection.
The goal is to share a design and furniture idea aligned with the brief, in order to give the apartment a unique touch and a distinctive character, based on the budget.
THE APARTMENT AND WHO’S GOING TO LIVE IT
The apartment is located in Milan, Porta Venezia area, in an elegant building from the ‘50, stylish and well-maintained. The goal is to give the apartment a fresh and elegant look while, at the same time, using bright colors to create interesting contrasts which represent the property owner style.
The owner is a 30 y.o. guy, sportsman and lover of good food. He decided to leave the maximum space to kitchen and living areas in order to have a comfortable place to cook and eat something together with his friends and a living room where he can relax watching tv or reading a book on a comfortable sofa.
ROOMS IN DETAILS:
1. LIVING
A mix between industrial and eclectic style, which stands out by bright color-contrasts.
The floor is warm, wooden, in order to walk barefoot on it. There must be a comfortable and wide sofa which can host two lying down people at the same time. A bookcase piece of furniture is very appreciated (around 100 books).
2. KITCHEN
The kitchen has to be placed below the window, next to the bathroom. It has to be a wide working surface, with not many wall-units over it because they make it difficult to move and work in the kitchen. It would be great having a surface where you can eat some food and have a drink without having to set a table.
Please keep in mind: in the future the apartment could be transformed into a 2-bedroom apartment, adding a second room instead of the current living and making the kitchen a kitchen&living. For this reason, I wouldn’t use fixed elements in the kitchen (like an “island” in the middle of the room) that couldn’t be easily moved in the future.
3. CORRIDOR
The corridor is quite long and it’s certainly a peculiar trait of the apartment. The goal is to add value to this aspect in order to make it unique. Priority to the design and aesthetics aspect, rather than practicality and storing capacity (the apartment will be used by a single so there is no need to have plenty of closets).
Not big and bulky wardrobes which make the corridor look smaller. Better to play with lights, shapes and colors to create fascinating access to the apartment.
4. BEDROOM
This room is 12 sqm only. It just needs to be fresh, clean, light colors in order to maximize space perception.
5. BATHROOM
Comfortable shower (at least 100x 80). No bath-tub. Simple style, clean, fresh colors. White tiles are very appreciated (greek / israelian style as per in the moodboard) Do not consider toilet,bidet,ect location in the planimetry. You can move them wherever you want.
BUDGET AND OTHER CONSTRAINTS:
- Budget to cover finishing materials and furniture is around 30.000 Eur. I do not plan to buy expensive and rare pieces of furniture. The goal is to play with colors and shapes to create a nice effect, without spending a lot for single pieces.
- A wooden floor is very appreciated. In order to walk on it barefoot.
- Windows will be recovered. They are made with wood and color can be changed.
MOODBOARD
https://drive.google.com/file/d/1qMEd8jgeH591RD6S9i5bVAPgX00Ojywu/view?usp=sharing