
Milano, MI, Italia
Residenziale - Zona Giorno/Notte
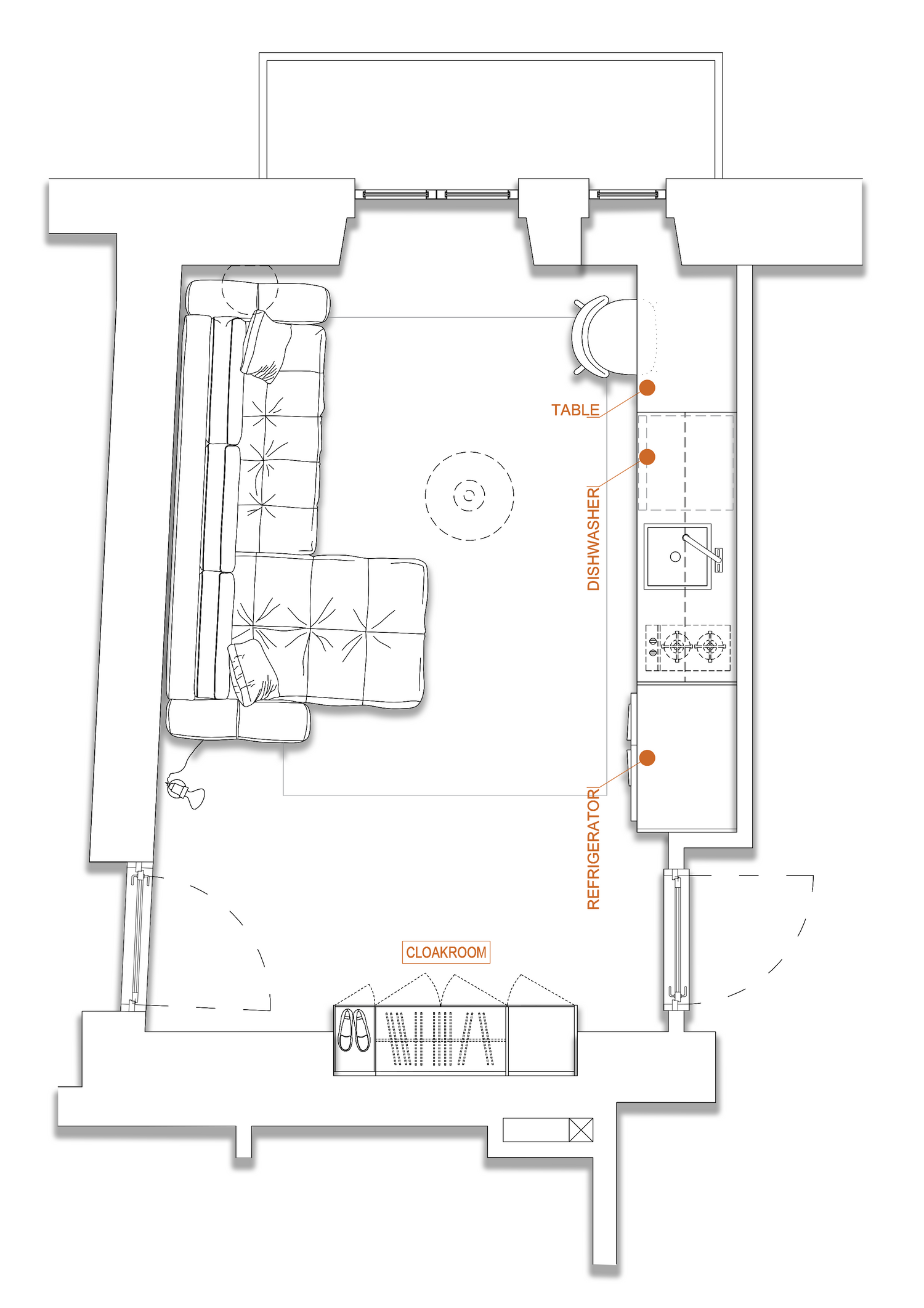
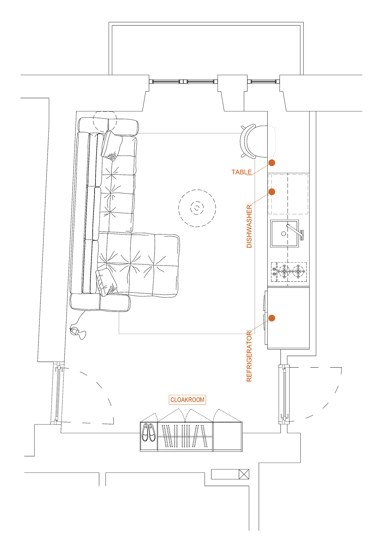
This project transforms a compact living room with kitchenette into a modern, functional, and design-oriented interior. The aim was to create a space that feels elegant and comfortable for the client’s part-time living, while also being stylish and attractive for Airbnb guests.
The layout is centered around a sofa bed, which provides flexibility between relaxation and sleeping use. The kitchenette in Farrow & Ball Mizzle green becomes the visual anchor of the space, paired with a marble backsplash and an integrated dining corner that allows efficient use of every centimeter.
The **color palette—Mizzle, Skimming Stone, white, and black—**establishes a refined harmony, while wall paneling and moldings add architectural depth and sophistication without overwhelming the compact proportions.
Lighting enhances the modern aesthetic, with a combination of spherical pendant and wall fixtures and a sculptural floor lamp that create both atmosphere and visual rhythm. Natural light, filtered through soft textured curtains, further amplifies the sense of brightness and openness.
The result is a stylish, welcoming, and versatile space, tailored to meet the needs of both the homeowner and short-term guests, combining practicality with timeless design.