Milano, MI, Italia
Residenziale - Zona Giorno/Notte
Descrizione
ENG:
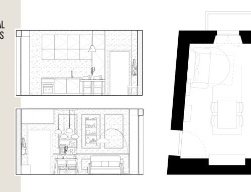
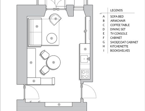
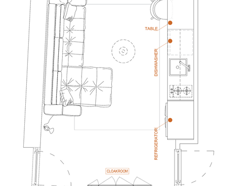
I need to organize the living room with a kitchenette so that it includes both a dining area and a sofa bed, an armchair, a bookcase, and a coat rack. A TV is not necessary. The style should be modern and design-oriented.
Preferred colors: Farrow & Ball Mizzle, Skimming Stone, white, black, Scallop.
Wall paneling and moldings are acceptable. Design lamps (such as Artemide Dioscuri, Flos Parentesi) are also welcome. Paneling and moldings should only be used on the walls, not on the furniture.
This is a second home where I live part-time, and the rest of the time it is rented on Airbnb, so it needs to be stylish and attractive but without expensive items.
SPA:
Necesito organizar el salón con cocina americana de manera que incluya tanto un espacio para comer como un sofá cama, un sillón, una librería y un perchero. La TV no es necesaria. El estilo debe ser moderno y de diseño.
Colores preferidos: Farrow & Ball Mizzle, Skimming Stone, blanco, negro, Scallop.
Se aceptan panelados y molduras en las paredes. También son bienvenidas lámparas de diseño (como Artemide Dioscuri, Flos Parentesi). El panelado y las molduras deberán aplicarse solo en las paredes, no en los muebles.
Se trata de una segunda vivienda en la que vivo parcialmente y que el resto del tiempo se alquila en Airbnb, por lo que debe ser atractiva y con estilo, pero sin elementos costosos.
ITA:
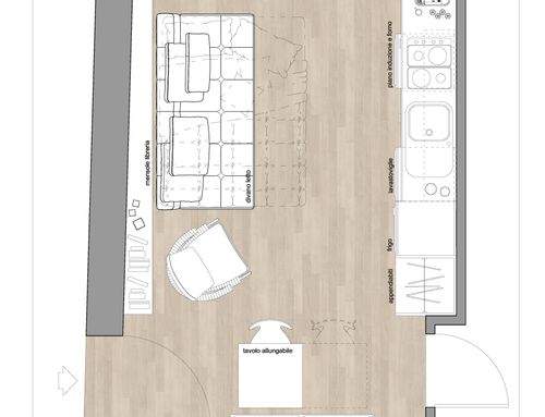
Devo riuscire a organizzare nella living room con angolo cottura sia lo spazio per cenare sia un divano letto, poltroncina, libreria, appendi abiti, TV non necessaria. Stile moderno, design. Preferenza colori stile Farrow&Ball Mizzle, Skimming Stone, bianco, nero, Scallop. OK boiserie, modanature da parete. OK lampade design (tipo artemide dioscuri, flos parentesi). OK boiserie, modanature a parete, no sui mobili. La casa è una seconda casa dove ci vivo parzialmente e il resto va su airbnb quindi deve essere carina ma non con cose costose.