
Milan, Metropolitan City of Milan, Italy
Residenziale - Appartamento
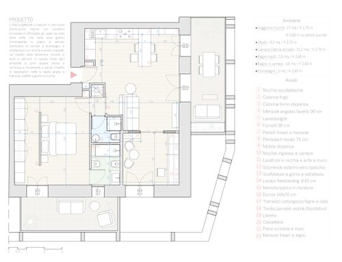
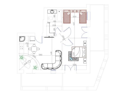
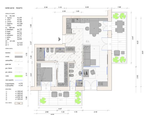
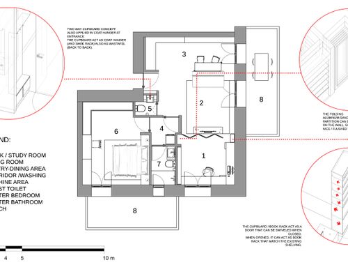
Descrizione
ENG:
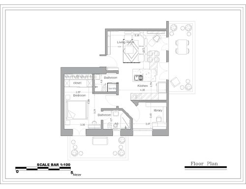
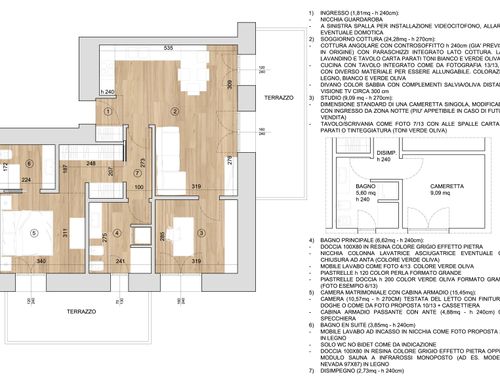
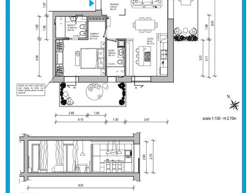
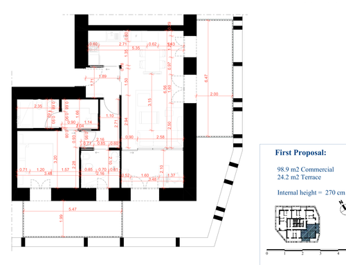
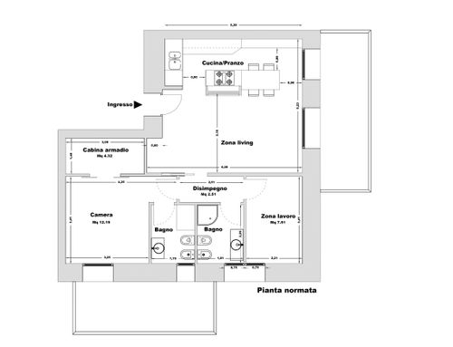
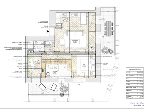
The apartment is on the 6th floor of a 24 stores building. I come from the Dolomites, so my wish is to have a lot of warm colors, brown/wood and some olive green/dark green, which is very calming. I am attaching the floor plan. My aim is to create a "study/work" area within the apartment, but having space for an open kitchen/living room where the TV is minimum 3m from the sofa. Ideally I would love to have a walk in closet. The wash machine goes into one of the two bathrooms. Kitchen table can be a sort of L (extension) of the kitchen itself (like in the photo I have attached). What about having a sauna in the bathroom (just a small for 1-2 people).
SPA:
El apartamento está en la 6ª planta de un edificio de 24 plantas. Yo vengo de los Dolomitas, así que mi deseo es tener un montón de colores cálidos, marrón / madera y un poco de verde oliva / verde oscuro, que es muy calmante. Adjunto el plano. Mi objetivo es crear una zona de "estudio/trabajo" dentro del apartamento, pero teniendo espacio para una cocina/sala de estar abierta donde la TV esté a un mínimo de 3m del sofá. Lo ideal sería tener un vestidor. La lavadora va en uno de los dos baños. La mesa de la cocina puede ser una especie de L (extensión) de la propia cocina (como en la foto que he adjuntado). También querría tener una sauna en el baño (solo una pequeña para 1-2 personas).
ITA:
L'appartamento si trova al 6° piano di un edificio di 24 piani. Vengo dalle Dolomiti, quindi il mio desiderio è avere molti colori caldi, marrone/legno e un po' di verde oliva/verde scuro, che è molto rilassante. Il mio obiettivo è quello di creare una zona "studio/lavoro" all'interno dell'appartamento, ma avendo spazio per una cucina/soggiorno a vista vorrei che la TV sia a minimo 3m dal divano. Idealmente mi piacerebbe avere una cabina armadio. La lavatrice entra in uno dei due bagni. Il tavolo della cucina può essere una sorta di L (estensione) della cucina stessa (come nella foto che ho allegato). Vorrei avere una sauna in bagno (solo una piccola per 1-2 persone).