Rome, Metropolitan City of Rome, Italy
Residenziale - Zona Giorno/Notte
Descrizione
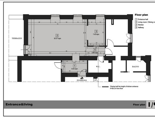
mi piace sia lo stile shabby che l'industrial. magari un mix tra i due che renda l'ambiente caldo ed accogliente inserendo un tocco o un particolare fuori dallo schema di arrendo scelto per l'ambiente. Soluzioni di arredamento che possano coniugare estetica e razionalità, che aiutino a "tenere in ordine",soluzioni calde e funzionali per avere sempre ogni cosa al propio posto. La stanza sulla quale lavorare è il salone centrale (ben distinguibile sulla planimetria) in continuità con il disimpegno (non ci sono porte, per cui tutto a vista)
Love both shabby and industrial style. A mix of different style to create a welcoming atmosphere with a particular or a "small touch" out of the "choosed scheme" for the room (only for instance: a nordic style or british classic single piece) . Furniture and solution that can combine style and rationality, helping to keep things in order. the room is the living room open kitchen, together with the hallway (no door, so, everything directly visibly from it)