šŸ”„ CYBER MONDAY 24H: -60% su tutti i prezzi del sito! Solo fino a mezzanotte. Usa il codice CYBERMONDAY25 šŸ‘‰šŸ¼
home / concorsi / indoor/outdoor backyard appartment
img

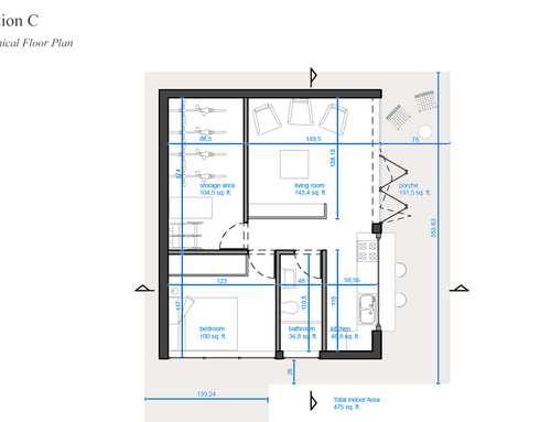
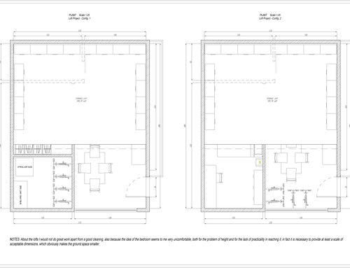
indoor/outdoor backyard appartment

Burlingame, CA, USA

Residenziale - Zona Giorno/Notte

  • 1° Posto $ 312
  • 2° Posto $ 104
  • 3° Posto $ 52
  • 4° Posto $ 26
  • 5° Posto $ 26