
Turin, Metropolitan City of Turin, Italy
Residenziale - Zona Giorno/Notte
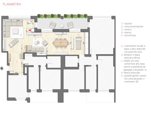
Descrizione
Lo spazio soggiorno della casa รจ frutto dell'unione di 2 alloggi e oggi ci troviamo con un grande spazio, ma non definito. La caratteristica di questa sala รจ la luce. Ci piacerebbe avere un ambiente di rappresentanza in cui accogliere gli ospiti senza penalizzare la vita quotidiana della famiglia. In famiglia siamo in 4 (mio marito ed io e 2 bambine). Una zona tv รจ essenziale, ma non vorrei che fosse troppo centrale (anche perchรจ le bambine saltano sui divani), mi piacerebbe avere una zona conversazione e un tavolo lungo da pranzo per almeno 8/10 persone. Nessun pezzo dell'arredo รจ irrinunciabile. inoltre, abbiamo un tapis roulant che non trova una collocazione in casa...
English:
The living room of this house is the product of 2 merged apartments, so now we have a large (undefined) space. Light is the best feature of this room. We would like to have a presentable environment to welcome guests without losing daily family life. There are 4 of us in the family (my husband and I and 2 daughters). We consider a TV area essential, but I would not like it to be the main focal point of the room (also because the girls jump on the sofas), I would like to have a conversation area and a long dining table for at least 8-10 people. No piece of furniture is indispensable. Additionally, we have a treadmill that we canโt find a place for in the house ...
Espagnol:
El salรณn de la casa es el resultado de la uniรณn de 2 apartamentos y hoy nos encontramos con un gran espacio, pero no definido. La caracterรญstica de esta habitaciรณn es la luz. Nos gustarรญa tener un ambiente representativo en el que recibir a los huรฉspedes sin penalizar el dรญa a dรญa de la familia. Somos 4 en la familia (mi esposo, yo y 2 niรฑas). Una zona de televisiรณn es fundamental, pero no me gustarรญa que fuera demasiado cรฉntrica (tambiรฉn porque las chicas saltan sobre los sofรกs), me gustarรญa tener una zona de conversaciรณn y una mesa de comedor larga para al menos 8/10 personas. Ningรบn mueble es indispensable. Ademรกs, tenemos una cinta de correr que no encuentra lugar en la casa