
13044 Crescentino VC, Italy
Residenziale - Appartamento
Descrizione
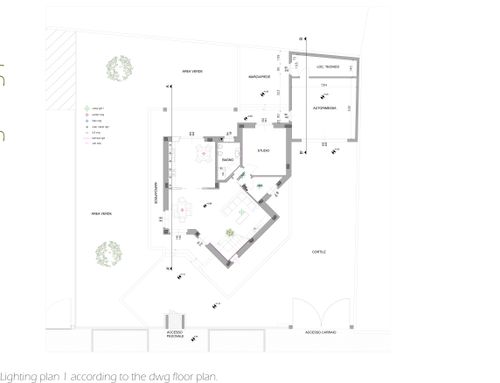
Devo illuminare i diversi ambienti della nuova casa in costruzione, disposta su due piani. In cucina l'arredatore ha previsto una controsoffittatura sopra i pensili in modo da nascondere il condotto di aspirazione della cappa e allo stesso tempo adatto ad ospitare led o faretti. In soggiorno nel sottoscala posizioneremo la tv a muro tramite staffa. Ci piacerebbe avere i gradini della scala illuminati. Al primo piano le camere hanno il soffitto molto alto poichè non è prevista la soletta sotto-tetto. Pertanto l'altezza varia da 270 a 430 cm. Sono previste due porte scrigno, indicate in planimetria. Ci piace uno stile moderno molto semplice, quasi minimal e possibilmente sfruttando molto l'illuminazione a led, nelle sue diverse forme. Attenzione: NON sono interessato alla planimetria con la distribuzione degli spazi ma SOLO alla planimetria con la distribuzione delle luci negli spazi e la lista delle luci da acquistare, per piacere sostituite la pianta arredata con la pianta luci, grazie.
I have to illuminate the different rooms of the new house under construction, on two floors. In the kitchen the decorator has foreseen a false ceiling above the wall units in order to hide the hood's suction pipe and at the same time suitable to house LEDs or spotlights. In the living room under the stairs we will place the TV on the wall using a bracket. We would like to have the illuminated stairway steps. On the first floor the rooms have a very high ceiling as the sub-roof is not provided. Therefore the height varies from 270 to 430 cm. There are two casket doors, indicated in the plan. We like a modern style that is very simple, almost minimal and possibly using a lot of LED lighting in its different forms. Attention, please: I'm not interested in the layout with the distribution of the spaces but ONLY the plan with the distribution of the lights in the spaces and the list of lights to be purchased. Please replace the regular floor plan with the LIGHTING PLAN, thank you. (Google Translator)