
31010 Farra di Soligo, Province of Treviso, Italy
Commerciale - Retail
Descrizione
ENGLISH
The bulding to be designed has a long history: initially it was a barn for dairy cows, converted into winery (wine making and bottling) so far no longer operative as it was moved to another site.
The designated use of internal space will be the following:
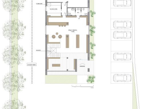
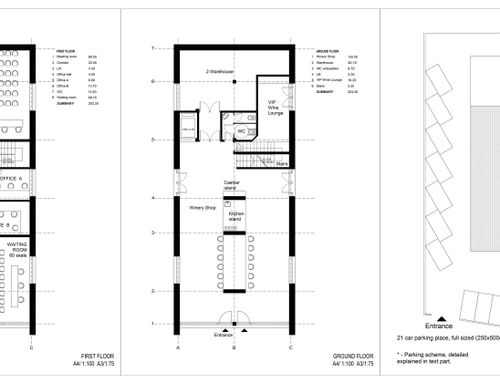
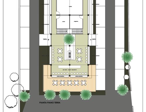
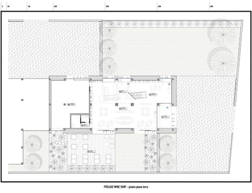
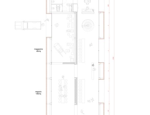
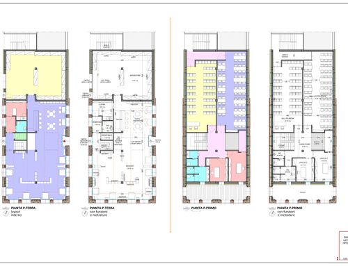
- AT THE GROUND FLOOR: new wine shop of Perlage Winery, WC, a small kitchen, warehouse;
- AT THE FIRST FLOOR: a meeting room, WC, 2 offices, a reception room.
The priority should have to be given to the EXTERNAL PART and then to the internal part.
The design principles would have to be the following: environmental sustainability (use of eco-materials, energy efficiency ecc.), integration of the buildings into the urban context and landscape, coherence with the local history and with the geographical context (Prosecco Hills, Conegliano-Valdobbiadene area).
FOR A SHORT VIDEO OF THE BUILDING CLICK ON THIS LINK: https://drive.google.com/file/d/1q2FQzn6Z9qu9qpDkx0F6mhipz4lhyCCp/view?usp=sharing
SOME DESIGN REQUIREMENTS AND NEEDS
Our building is located in Farra di Soligo - Treviso Province - Veneto Region (ITALY). You can type "45.908703, 12.142199" in Google Maps.
CLIMATE OF THE SITE
Farra di Soligo has a warm and a temperate climate with a substantantial rainfall throughout the year. Also in dry season there is a significant rainfall. 12.2°c is the yearly mean temperature and 1038 mm is the yearly mean rainfall (in January 1.8°c and 60 mm of rainfall; in June 117 mm of rainfall; in July 22.4°c).
PRIORITIES
- The external surface of the buildings;
- The design of the new store at ground floor (with a surface of about 120 m2) and the meeting and welcome rooms
- Sharing the values of our company (organic wines, sustainability, company's ethics, environmental and social responsability, innovation);
- Attracting visitors and tourists that will visit Conegliano-valdobbiadene hills.
- Considering the environmental impact of the building and the integration with the surrounding buildings.
INDOOR
A) Winery shop: we're going to sell ideally 125000 bottles per year, 10400 bottles per month, 400 bottles per day; about 20 people/day
will visit us (at operating speed). We're producing about 27 sorts of wines;
B) Meeting rooms, welcome rooms.
Meeting rooms should host 60 people in case of seminars, conferences etc.
Welcome rooms should host 60 people for example tourists coming here by bus.
(Winery shop should host the same 60 people above but only during some events not every day).
We would need 120 chairs; maybe the rooms could be close together, separated by a sliding wall..
C) Currently there aren't internal stairs; we don't have any preference for the internal stairs; you're free to decide the most suitable place.
D) The first floor is at an height equal to 3.5 m
E) There are no limits in demolition, excluding pillars of load-bearing structure; you could remove currently exterior walls while keeping
the armed concrete structure.
F) We need a warehouse for storing products at ground floor (with a surface of about 40 m2).
G) Kitchen at ground floor used for our wine tastings, preparing finger foods or meals for our visitors that will stay at 1st floor.
H) Indoor style: use of natural material (stones, wood…)
I) We prefer an horizontal plan segmentation so an horizontal development of rooms and spaces.
L) The small kitchen, WCs and staircase at ground floor would take up a surface of about 50 m2
OUTDOOR
A) The style has to be consistent with the house next to our building (look at the pictures) and with the surrounding environment;
B) It's possible to apply a volume subtractions or façade void, keeping in mind of main pillars and that the building is made of reinforced concrete;
C) It's possibile to get out of the walls for a certain amount (i.e. 40 cm);
D) It’s possible to decrease the projection of the pitches or insert some roof lights.
E) It's not possible to add any other buildings, canopies, pergolas or lengthening covering roof slabs etc.;
F) The external staircase (that you see in the video) can be used but only as an emergency way;
G) The external space can be designed thinking at some paths which lead to the entrance, green areas; It’s not necessary to have two
entrances; it’s possible to provide a single entrance from the road.
H) Parking: thinking at as much parking units as possibile, in function of the available space.
I) Designing loading and unloading areas
J) It’s possible to change the size and/or position of the two existing gates but it should be justified by clear reasons.
K) The house next to our building is not part of the building itself; it has its own entrance.
-----------------------
ESPAÑOL
El edificio a diseñar tiene una larga historia: inicialmente fue un establo para vacas lecheras, se convirtió en bodega (creación de vino y embotellado) al momento ya no está operativo, ya que fue trasladado a otro sitio.
El uso designado al espacio interno será el siguiente:
- EN LA PLANTA BAJA: nueva tienda de vinos de Perlage Winery, baño, una pequeña cocina, almacén;
- EN EL PRIMER PISO: una sala de reuniones, baño, dos oficinas, una recepción
La prioridad debe estar en la PARTE EXTERNA y luego en la parte interna.
Los principios de diseño deben tener lo siguiente: sustentabilidad ambiental (utilizar materiales ecológicos, eficiencia energética, etc.), integración de los edificios en el contexto urbano y paisaje, coherencia total con la historia local y el contexto geográfico (Prosecco Hills,
Zona de Conegliano-Valdobbiadene)
PARA VER UN VIDEO CORTO DEL EDIFICIO HAZ CLICK EN ESTE ENLACE: https://drive.google.com/file/d/1q2FQzn6Z9qu9qpDkx0F6mhipz4lhyCCp/view?usp=sharing
ALGUNOS REQUISITOS Y NECESIDADES DE DISEÑO
Nuestro edificio está ubicado en Farra di Soligo - Provincia Treviso - Región de Veneto (ITALI). Puedes escribir "45.908703, 12.142199" en Google Maps.
CLIMA DEL LUGAR:
Farra di Soligo tiene clima cálido y templado con precipitaciones sustanciales durante todo el año.
También en la estación seca hay precipitaciones significativas. 12,2 ° c es la temperatura media anual y 1038 mm es la precipitación media anual (en enero 1,8 °C y 60 mm de lluvia; en junio 117 mm de lluvia; en julio 22.4 °C).
PRIORIDADES
- La superficie externa del edificio;
- El diseño de la nueva tienda en planta baja (con una superficie de aproximadamente 120 m2) y las salas de reuniones y recepción;
- Compartir los valores de nuestra empresa (vinos orgánicos, sustentabilidad, éticas de la compañía, responsabilidad social y ambiental,
innovación);
- Atraer visitantes y turistas que visiten las colinas Conegliano-valdobbiadene.
- Considerar el impacto ambiental del edificio y la integración con los edificios circundantes
INTERIOR:
A) Tienda de vino: Idealmente vamos a vender 125000 botellas por año, 10400 botellas por mes, 400 botellas por día, cerca de 20 perosnas/día nos visitarán (a velocidad de funcionamiento) Producimos alrededor de 27 tipos de vinos.
B) Sala de reuniones, sala de bienvenida.
Las salas de reuniones deben albergar a 60 personas en caso de seminarios, conferencias, etc.
Las salas de bienvenida deben albergar a 60 personas por ejemplo turistas que llegan aquí en ómnibus
(La tienda de vino debe albergar a las mismas 60 personas mencionadas anteriormente, pero solo durante algunos eventos, no todos los días)
Necesitamos 120 sillas. Las salas podrían estar cerca unas de otras y separadas por una pared deslizante.
C) Actualmente no hay escaleras internas; no tenemos ninguna preferencia acerca de las escaleras internas; eres libre de decidir el lugar más adecuado.
D) El primer piso está a una altura igual a 3.5 m.
E) No hay limites en cuanto a demolición, excluyendo pilares de estructura portante; puedes remover las paredes exteriores actuales pero manteniendo la estructura de hormigón armado
F) Necesitamos un almacén para almacenar productos en la planta baja (con una superficie de aproximadamente 40 m2)
G) La cocina en la planta baja utilizada para nuestras degustaciones de vinos, preparando bocadillos o comidas para nuestros visitantes que se quedarán en el primer piso.
H) Estilo interior: utilizar materiales naturales (piedra, madera...)
I) Preferimos una segmentación de plano horizontal para un desarrollo horizontal de habitaciones y espacios.
L) La cocina, los baños y las escaleras en la planta baja ocuparán un área de aproximadamente 50 m2.
EXTERIOR
A) El estilo tiene que ser consistente con la casa al lado de nuestro edificio (mirar las fotos) y con el entorno que lo rodea
B) Es posible aplicar un volumen de sustracciones o un vacío de fachada, teniendo en cuenta los pilares principales y que el edificio está hecho de hormigón armado;
C) Es posible salir de las paredes por una cierta cantidad (es decir, 40 cm);
D) Es posible disminuir la proyección de las inclinaciones o insertar algunas luces de techo.
E) No es posible agregar otros edificios, toldos, pérgolas o alargamiento de losas de cubierta, etc .;
F) La escalera interna (que puedes ver en el video) puede usarse pero solo como una salida de emergencia;
G) El espacio externo se puede diseñar pensando en algunos caminos que conducen a la entrada, áreas verdes; no es necesario tener dos entradas; Es posible proporcionar una sola entrada desde la carretera.
H) Estacionamiento: pensando en tantas unidades de estacionamiento como sea posible, en función del espacio disponible.
I) Diseño de áreas de carga y descarga.
J) Es posible cambiar el tamaño y/o posición de las dos puertas existentes, pero debe justificarse por razones claras.
K) La casa al lado de nuestro edificio no es parte del edificio en sí; Tiene su propia entrada.
-----------------------
ITALIANO:
Lo spazio da progettare ha una lunga storia: originariamente era una stalla per vacche da latte, convertita poi in cantina (vinificazione e imbottigliamento) ad oggi dismessa, in quanto spostata in un altro sito.
La destinazione d'uso degli spazi interni dell'edificio sarà la seguente:
AL PIANO TERRA - nuovo punto vendita dell'azienda (Perlage Winery), bagni, piccola cucina, magazzino;
AL PRIMO PIANO - sala riunioni, bagni, 2 uffici e sala accoglienza.
Vorremmo fosse data priorità alla progettazione della PARTE ESTERNA dell'edificio e in secondo luogo a quella degli interni.
I principi di progettazione vorremmo fossero i seguenti: sostenibilità ambientale (utilizzo di materiali ecocompatibili, efficienza energetica ecc.), integrazione dello spazio con il paesaggio e il contesto urbano circostante, coerenza con la storia del luogo e con quella del contesto geografico di riferimento (colline del Prosecco, area del Conegliano-Valdobbiadene DOCG).
A QUESTO LINK TROVATE UN BREVE VIDEO DELL'EDIFICIO ESISTENTE: https://drive.google.com/file/d/1q2FQzn6Z9qu9qpDkx0F6mhipz4lhyCCp/view?usp=sharing
LE CONDIZIONI CLIMATICHE DEL SITO E LE NOSTRE ESIGENZE PROGETTUALI
L'edificio è situato a Farra di Soligo (TV). Potete digitare "45.908703, 12.142199" in Google Maps.
CLIMA DEL LUOGO
Farra di Soligo è caratterizzata da un clima caldo e temperato. Presenta una piovosità significativa durante tutto l'anno. Anche nel mese più secco si riscontra molta piovosità. La temperatura media annuale è di 12.2°c e 1038 mm è il valore di piovosità media annuale.
(A Gennaio 1.8°c e 60 mm di precipitazione; in giugno 117 mm di precipitazione; in luglio 22.4°c).
PRIORITÀ NEL PROGETTO
- Il rivestimento esterno dell'edificio
- La progettazione del nuovo punto vendita al piano terra (120 m2) e delle sale riunioni e accoglienza al primo piano;
- I nostri valori (vini biologici, sostenibilità, responsabilità' ambientale e sociale, innovazione, etica nell'impresa);
- Attrarre visitatori e turisti che visiteranno le colline del Conegliano-Valdobbiadene DOCG.
- L'impatto ambientale dell'edificio e la compatibilità con gli edifici adiacenti.
INTERNI
A) Il punto vendita al piano terra (che pensiamo debba avere una superficie di circa 120 m2) dovrebbe essere progettato per vendere
idealmente 125000 bottiglie all'anno, 10400 bottiglie al mese, 400 bottiglie al giorno (a regime). In condizioni normali si prevede
venga frequentato da una ventina di persone al giorno. Produciamo 27 tipi di vini circa.
B) Sala riunioni, sala accoglienza.
La sala riunioni potrà ospitare fino a 60 persone e sarà utilizzata nel caso di seminari, conferenze ecc.
La sala accoglienza potrà ospitare fino a 60 persone, ad esempio turisti in visita (un bus contiene in genere 52 persone circa in totale).
Avremo bisogno di 120 sedie per sala riunioni e accoglienza; le sale potrebbero eventualmente essere vicine l'una all'altra e separate
da una parete scorrevole..
(Il negozio potrà ovviamente ospitare le 60 persone di cui sopra ma solo durante particolari occasioni (non tutti i giorni).
C) Attualmente non esistono scale interne. Non abbiamo nessuna preferenza progettuale nella posizione delle scale interne; siete liberi di
disporle nella posizione più adeguata.
D) Il piano superiore si trova all'incirca ad un'altezza di 3.5 m.
E) Non ci sono limiti di demolizione, escludendo i pilastri della struttura portante;
F) Magazzino al piano terra (che abbia una superficie di circa 40 m2).
G) Cucina al piano terra utilizzata per la preparazione di piccoli pasti per i visitatori che verranno accolti al primo piano.
H) Stile interno: sono preferibili materiali naturali come legno, pietra.
I) Preferiamo uno sviluppo orizzontale degli ambienti.
J) La cucina, i bagni e le scale al piano terra occuperanno una superficie pari a circa 50 m2.
ESTERNI
A) Lo stile esterno deve essere compatibile con l'edificio annesso (vedi immagini) e con l'ambiente circostante.
B) È possibile pensare a delle sottrazioni di volume o svuotamenti in facciata, tenendo conto dei pilastri portanti e che la struttura è in
cemento armato.
C) È possibile prevedere delle sporgenze dai muri (es. 40 cm)
D) È possibile diminuire l'aggetto delle falde rispetto alle facciate o prevedere intere porzioni di copertura vetrate
E) Non è possibile aggiungere altri edifici, tettoie, pergolati o allungare solai di copertura ecc.
F) Le scale esterne visibili nel video fanno parte della proprietà e possono essere utilizzate solo come scale di emergenza.
G) Lo spazio esterno può essere progettato disegnando dei percorsi che gestiscono l'ingresso, spazi verdi. Si può prevedere anche un
unico ingresso dalla strada.
H) Parcheggio: Progettare un numero adeguato di posti macchina in funzione dello spazio a disposizione.
I) Prevedere spazi di carico e scarico merci.
J) È possibile modificare dimensioni e/o posizione dei due cancelli carrai esistenti se opportunamente motivato da chiare necessità.
K) L'edificio adiacente non fa parte della proprietà e ha un accesso dedicato.