
Il Giardino, Rosignano Marittimo LI, Italia
Commerciale - Hotel
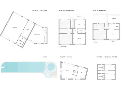
Descrizione
ENG:
Hotel construction, 20 two-room apartments and 20 rooms with swimming pool in a context where there is a bar and restaurant to be integrated. Land available for new settlement 90x50 m, parking 110x25 m, structures on two floors ground floor and first floor.
SPA:
Construcción de hotel, 20 apartamentos de dos ambientes y 20 habitaciones con piscina en un contexto donde se encuentra un bar y un restaurante a integrar. Terreno disponible para obra nueva 90x50 m, parking 110x25 m, estructura en dos plantas planta baja y primer piso.
ITA:
Costruzione Hotel, 20 bilocali e 20 camere con piscina in un contesto dove esistaono bar e ristorante da integrare. Terreno disponibile per nuovo insediamenteo 90x50 mt, parcheggio 110x25 mt, strutturas su due piani pian terreno e primo piano.