
Venice, Metropolitan City of Venice, Italy
Residenziale - Casa
Descrizione
ENG:
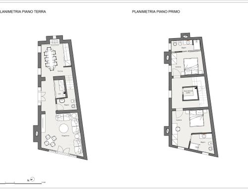
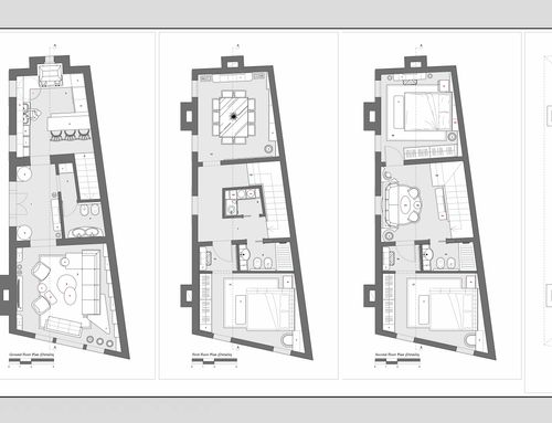
The property is an old house on three floors dating back to the 19th century, free on all sides but inserted in the context of the fishing village, San Pietro in Volta, overlooking the Venice Lagoon. In ancient times the property was used as an inn and later converted into a home. At the time of purchase it had been uninhabited for several years and in precarious conditions. Our need is to transform it into a holiday home for tourist stays, it must be characterized by a common space for convivial lunches and dinners, a living area and bedrooms, each with its own bathroom. A small laundry and wardrobe space would also be needed to store all the changes (sheets, towels and more). Romantic, seafaring but simple furniture with essential lines.
SPA:
La propiedad es una antigua casa de tres plantas que data del siglo XIX, libre por todos los lados pero situada en el contexto del pueblo pesquero de San Pietro in Volta, con vistas a la Laguna de Venecia. La propiedad se utilizaba antiguamente como posada y posteriormente se convirtió en vivienda. En el momento de la compra llevaba varios años deshabitada y su estado era precario. Nuestro deseo es convertirla en una casa de vacaciones para estancias turísticas. Debería contar con una zona común para comidas y cenas de convivencia, una zona de estar y dormitorios, cada uno con su propio cuarto de baño. También sería necesaria una pequeña zona de lavandería y armarios para guardar todas las mudas (sábanas, toallas, etc.). Mobiliario romántico, náutico pero sencillo, de líneas esenciales.
ITA:
L'immobile è una vecchia casa disposta su tre piani risalente all'Ottocento, libera su tutti i lati ma inserita nel contesto del paese di pescatori, San Pietro in Volta, affacciato sulla Laguna di Venezia. Anticamente l'immobile era utilizzato come locanda e successivamente convertito in abitazione. Al momento dell'acquisto era disabitato da diversi anni ed in condizioni precarie. La nostra esigenza è quella di trasformarlo in casa vacanze per soggiorni turistici, dovrà essere caratterizzata da uno spazio comune per pranzi e cene conviviali, un area living e stanze da letto, ciascuna con il proprio bagno. Sarebbe necessario anche un piccolo spazio lavanderia e guardaroba per riporre tutti i cambi ( lenzuola, asciugamani ed altro). Arredo romantico, marinaro ma semplice con linee essenziali.