
Naples, Metropolitan City of Naples, Italy
Residenziale - Appartamento
Descrizione
ITA:
Salve a tutti! Vi ringraziamo per contribuire alla realizzazione del nostro appartamento di circa 80 mq.
Siamo due giovani professionisti, al momento con 1 figlio ma speriamo che la nostra famiglia cresca. La nostra visione è quella di creare uno spazio abitativo moderno, funzionale e accogliente, che rispecchi lo stile di vita di una giovane famiglia. Immaginiamo un ambiente dove il design contemporaneo si fonde con la praticità, creando un'atmosfera ideale sia per la vita quotidiana che per l'ospitalità di amici e parenti.
Le nostre esigenze specifiche includono:
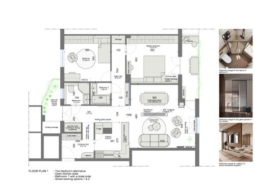
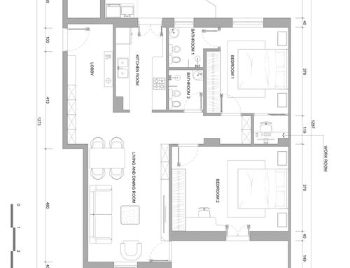
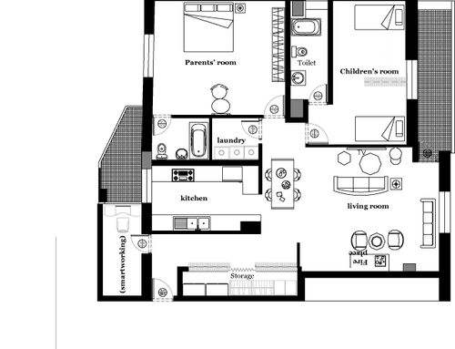
• Cucina e soggiorno: desideriamo uno spazio cucina ben definito, ma che mantenga una connessione con la zona living, così da poter creare, a seconda delle occasioni ed esigenze, due ambienti separati o un unico ambiente per ospitare comodamente amici e parenti.
Se possibile, considerare di poter guardare la stessa TV contemporaneamente sia da chi è in salotto che da chi è in cucina.
• Due camere da letto: una camera matrimoniale e una camera per bimbi, quest’ultima con possibilità in futuro di dividerla in due se si presenterà tale esigenza;
• Due bagni;
• Un ripostiglio: Uno spazio funzionale per riporre oggetti, attrezzature, stoccaggio;
• Un ripostiglio aereo nell’area disimpegno;
• Spazio dedicato alla laundry, se possibile;
• Possibilità di adattare uno spazio per lo smart-working.
Ulteriori informazioni:
- Nella zona giorno vorremmo avere un camino a bioetanolo.
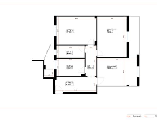
- La vista esterna dal lato sinistro è sul cortile interno dell'edificio, mentre sul lato destro c'è una vista più ampia; il balcone sul lato sinistro è più piccolo e comprende già uno spazio definito per lo stoccaggio, mentre quello sul lato destro è più lungo e ha accesso da due stanze. Pertanto, ci piace di più il lato destro dell'appartamento, ma d'altra parte non ci piace l'ingresso principale direttamente in cucina.
- Preferiremmo non avere alcun gradino all'interno del nostro appartamento.
- Non ci piacciono le doghe di legno per separare le aree.
Evidenziati con un cerchio, i pilastri che non possono essere spostati.
Abbiamo scoperto un errore nella planimetria che riporta una colonna di fronte alla porta di ingresso, che abbiamo segnato con una croce (X) con penna. Tale colonna non c'é, come anche mostra la foto caricata. Ci scusiamo per l'inconveniente.
Ci piacerebbe ricevere idee creative con soluzioni innovative e personalizzate, che possano valorizzare al meglio il nostro spazio abitativo.
Grazie anticipatamente per il tempo e la passione che porrete al nostro contest!
ENG:
Hi there, thanks for joining this contest and helping us to shape the house of our dreams. It’s around 80 squares meters.
We are a family with one kid and we wish to have more.
We would like a bright and welcoming house, with modern but functioning design, where you can feel at ease, after a working day and for gatherings with family and friends.
Our needs and requests are:
• Living area and Kitchen: with the possibility to have them separated and as open-space, according to the occasions; if feasible, we would like to have the possibility that the TV placed in the living area can be watched by people staying in both areas at the same time;
• Two bedrooms: one for us, one for children. The one for children to be designed in a way that can be divided in two smaller rooms in case in the future there will be this need;
• 2 bathrooms;
• Storage room;
• An aerial storage at the hallway area;
• Utility room with laundry and for cleaning staff, if feasible;
• Possibility to adapt an area to the smart-working
Further information:
• In the living area we would like to have a bioethanol fireplace.
• The view from the left side goes on the internal yard of the building; while on the right side, there is a wider view; the balcony on the left side is smaller and includes already a defined space for storage; while the one on the right side is longer and has access from two rooms. Therefore, we like the right side of the apartment more, but on the other hand we do not like the main entrance directly in the kitchen.
• We would prefer not to have any step inside our apartment.
• We do not like wooden slat to separate the areas.
Highlighted with circle, the pillars that cannot be moved.
We have found out that the column at the entrance shown on the plan, was a mistake and we have put a cross (X) on it by pen. In fact, you can refer to the picture that shows no colums in front of the entrance door. We apologize for the inconvenience.
Many thanks for the time and efforts you will dedicate to our contest!
SPA:
¡Hola a todos! Le agradecemos su contribución a la realización de nuestro apartamento de unos 80 metros cuadrados.
Somos dos jóvenes profesionales, actualmente con 1 hijo pero esperamos que nuestra familia crezca. Nuestra visión es crear un espacio habitable moderno, funcional y acogedor que refleje el estilo de vida de una familia joven. Imaginamos un ambiente donde el diseño contemporáneo se fusiona con la practicidad, creando una atmósfera ideal tanto para la vida cotidiana como para recibir a amigos y familiares.
Nuestras necesidades específicas incluyen:
• Cocina y salón: queremos un espacio de cocina bien definido, pero que mantenga una conexión con la zona de estar, de forma que podamos crear, según la ocasión y las necesidades, dos estancias separadas o una única estancia para acoger cómodamente a amigos y familiares.
Si es posible, considere permitir que tanto la persona en la sala de estar como la persona en la cocina vean la misma televisión al mismo tiempo.
• Dos dormitorios: uno de matrimonio y otro infantil, este último con posibilidad de dividirlo en dos en el futuro si surge tal necesidad;
• Dos baños;
• Un trastero: Un espacio funcional para guardar objetos, equipos, almacenamiento;
• Un cuarto de almacenamiento superior en el área del pasillo;
• Espacio de lavandería exclusivo, si es posible;
• Posibilidad de adaptar un espacio para teletrabajo.
Más información:
- En el salón nos gustaría tener una chimenea de bioetanol.
- La vista exterior desde el lado izquierdo es del patio interior del edificio, mientras que en el lado derecho hay una vista más amplia; El balcón del lado izquierdo es más pequeño y ya incluye un espacio definido para almacenamiento, mientras que el del lado derecho es más largo y tiene acceso desde dos habitaciones. Por eso nos gusta más el lado derecho del apartamento, pero por otro lado no nos gusta la entrada principal directamente a la cocina.
- Preferiríamos no tener ningún escalón dentro de nuestro apartamento.
- No nos gustan las lamas de madera para separar ambientes.
Resaltados con un círculo están los pilares que no se pueden mover.
Nos encantaría recibir ideas creativas con soluciones innovadoras y personalizadas que puedan mejorar mejor nuestro espacio vital.
¡Gracias de antemano por su tiempo y pasión por nuestro concurso!