
76121 Barletta, Province of Barletta-Andria-Trani, Italy
Residenziale - Appartamento
Descrizione
salve a tutti,
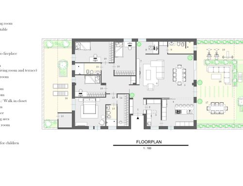
ho un appartamento all'ottavo piano da ristrutturare 200 mq di casa + 150 di veranda divisa in due spazi. La casa e' da progettare, completamente va soprattutto visto lo spazio esterno perchè quello interno è quasi sistemato ma ho bisogno del vs aiuto nel rivedere gli spazi come soggiorno e stanzette. L'appartamento deve essere diviso come da planimetria, vanno solo rivisti bene gli spazi cioè grande lavanderia che dovrebbe fungere da spogliatoio, piccolo studio funzionale tavolo grande da soggiorno (per minimo 5 persone max 12) e nel soggiorno una grandissima parete che deve contenere ogni cosa di oggettistica visto che sono abbastanza assortita e dove vivo adesso è poco valorizzata.
Le colonne portanti sono agli estremi della casa cioè dove e' presente il bagno grande nella zona notte dall'altra parte abbiamo la colonna nella zona giorno la veranda deve contenere spazio per gioco per i bambini di età 6- 8-12- anni zona relax e zona palestra e zona botanica da dividere tra le 2 verande e vorrei utilizzare il fotovoltaico.
Il mio stile è un classico tendente al moderno, nella zona notte ho acquistato un parquet , nella zona giorno ho acquistato un pavimento in gres porcellanato verde antiqua della Ragno. Il bagno della camera da letto i rivestimenti sono in gres porcellanato bianco di Michelangelo Della Ragno. Il bagno padronale nella zona notte verde di R.Cavalli, l'altro bagno è arancio con decori a murales. Bagno ospiti zona giorno, bianco con decori semplici.
Vorrei le stanzette colorate ma adatte per i bambini con disegni di supermario o supereroi.
Vorrei zona camera da letto molto elegante e raffinata.
Di seguito allego un video dello stato attuale dell'appartamento : https://www.dropbox.com/s/towk6luts1jh1st/WhatsApp%20Video%202022-04-16%20at%2013.01.01%20%281%29.mp4?dl=0
ENGLISH
Hi Everyone,
I have an apartment on the eighth floor to renovate 200 square meters of house + 150 of veranda divided into two spaces. The house is to be designed, especially the external space must be completely seen because the internal one is almost arranged but I need your help in revising the spaces such as living room and small rooms. The apartment must be divided as per the plan, the spaces must only be carefully reviewed, large laundry room that should serve as a dressing room, small functional study, large living room table (for minimum 5 people max 12) and in the living room a very large wall that must contain each thing of objects since they are quite assorted and where I live now is little valued.
The supporting columns are at the ends of the house where there is the large bathroom in the sleeping area on the other side we have the column in the living area the veranda must contain space for play for children aged 6-8-12 years relaxation area and gym area and botanical area to be divided between the 2 verandas and I would like to use photovoltaics.
My style is a classic tending to the modern, in the sleeping area I bought a parquet, in the living area I bought an antiqua green porcelain stoneware floor by Ragno. The bathroom in the bedroom is covered in white porcelain stoneware by Michelangelo Della Ragno. The master bathroom in the green sleeping area of R.Cavalli, the other bathroom is orange with mural decorations. Guest bathroom living area, white with simple decorations.
I would like colored rooms but suitable for children with drawings of supermario or superheroes.
I would like a very elegant and refined bedroom area.
Below I attach a video of the current state of the apartment:
https://www.dropbox.com/s/towk6luts1jh1st/WhatsApp%20Video%202022-04-16%20at%2013.01.01%20%281%29.mp4?dl=0
ESPANOL
Hola a todos,
Tengo un apartamento en el octavo piso para reformar 200 metros cuadrados de casa + 150 de terraza dividida en dos espacios. La casa esta para ser diseñada, sobre todo el espacio exterior se debe ver por completo porque el interior esta casi arreglado pero necesito de su ayuda en la revisión de los espacios como sala y cuartos pequeños. El apartamento debe dividirse según el plano, los espacios solo deben revisarse cuidadosamente, es decir, cuarto de lavado grande que debe servir como vestidor, pequeño estudio funcional, mesa de sala grande (para mínimo 5 personas máximo 12) y en la sala habitación una pared muy grande que debe contener cada cosa de objetos ya que son bastante variados y donde vivo ahora se valora poco.
Las columnas de soporte están en los extremos de la casa, es decir, donde está el baño grande en el dormitorio del otro lado, tenemos la columna en la sala de estar, la terraza debe contener espacio para que los niños de 6, 8 y 12 años puedan jugar y relajarse. área y área de gimnasio y área botánica para dividir entre las 2 terrazas y me gustaría usar energía fotovoltaica.
Mi estilo es un clásico con tendencia a lo moderno, en la zona de noche compré un parquet, en la zona de estar compré un suelo de gres porcelánico verde envejecido de Ragno. El baño del dormitorio está revestido de gres porcelánico blanco de Michelangelo Della Ragno. El baño principal en la zona verde de dormir de R.Cavalli, el otro baño es naranja con decoración mural. Sala de estar del baño de visitas, blanca con decoraciones sencillas.
Me gustaria habitaciones de colores pero aptas para niños con dibujos de super mario o superheroes.
Me gustaría una zona de dormitorio muy elegante y refinada.
A continuación adjunto un vídeo del estado actual del apartamento:
https://www.dropbox.com/s/towk6luts1jh1st/WhatsApp%20Video%202022-04-16%20at%2013.01.01%20%281%29.mp4?dl=0