
Naples, Metropolitan City of Naples, Italy
Residenziale - Appartamento
Descrizione
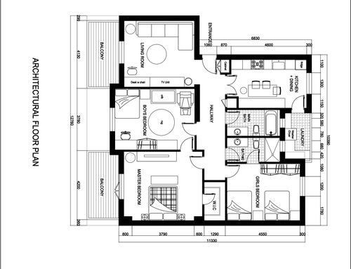
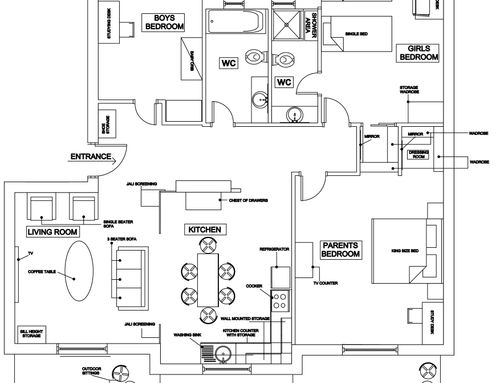
siamo una famiglia di 6 persone due adulti - due ragazze (15 e 17) e due maschietti (10 e neonato).
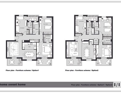
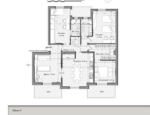
avremo pertanto bisogno di 2 camere da letto doppie ed 1 matrimoniale, 2 wc, 1 spazio lavanderia- dispensa, salone e cucina-soggiorno (li abbiamo pensati separati possibilmente da porte a vetro per dare un senso di ampiezza e continuità ma siamo aperti anche a soluzioni totalmente aperte o comunque a soluzioni diverse che vorrete proporci), 1 o 2 cabina spogliatoio, il tutto con uno stile classico moderno con le boiserie e controsoffittature con giochi di luci e faretti led. il pavimento con parquet di colore chiaro che possa dare un senso di continuità con i balconi terrazzo esterni.
le mura possono essere abbattute per creare nuove disposizioni delle stanze. noi vorremo la vasca da bagno nel bagno principale e la doccia nel bagno più piccolo. il bagno piccolo dovrebbe servire la stanza delle ragazze
We are a family of 6 people, two adults - two girls (15 and 17) and two boys (10 and newborn).
we will therefore need 2 double bedrooms and 1 double, 2 toilets, 1 laundry-pantry, living room and kitchen-living room (we thought them separated from glass doors possibly to give a sense of breadth and continuity but we are also open to totally open solutions or in any case to different solutions that you would like to propose), 1 or 2 dressing cabin, all with a modern classic style with wall panels and false ceilings with plays of lights and led spotlights. the light colored parquet floor that can give a sense of continuity with the outdoor terrace balconies.
the walls can be demolished to create new room layouts. we will want the bathtub in the main bathroom and the shower in the smaller bathroom. the small bathroom should serve the girls' room