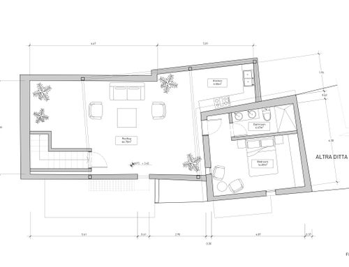
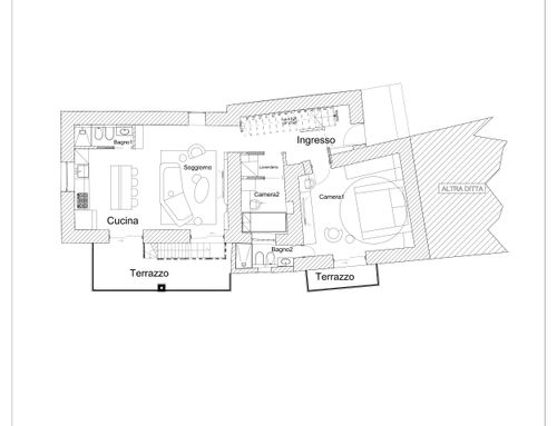
Descrizione
ENG:
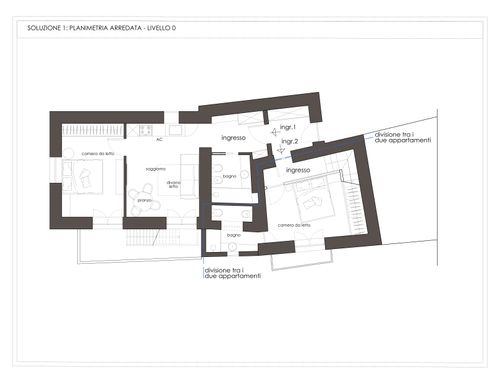
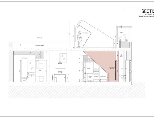
I would like a studio where the spaces are well exploited and above all the internal staircase that leads to the studio apartment on the terrace is light and the exit to the terrace is protected from the rain, stone, glass and wood elements. I would like a staircase that takes me from the entrance to the terrace. We are considering a small "pre-entry" that takes us directly to the terrace to be independent. I would like to insert a built-in kitchen on the terrace and make it more welcoming so that I can also use it in the summer.
I thought of an en-suite bathroom in the studio apartment; currently we have estimated that the bathroom in the room is also in the bedroom but I'm not sure.
SPA:
Me gustaría un estudio donde los espacios estén bien aprovechados y sobre todo la escalera interna que conduce al monoambiente en la terraza sea luminosa y la salida a la terraza esté protegida de la lluvia, elementos de piedra, vidrio y madera. Me gustaría una escalera que me lleve desde la entrada a la terraza. Estamos planteando una pequeña "preentrada" que nos lleve directamente a la terraza para independizarnos. Me gustaría insertar una cocina integrada en la terraza y hacerla más acogedora para poder utilizarla también en verano.
Pensé en un baño privado en el estudio; Actualmente hemos estimado que el baño de la habitación también está en el dormitorio, pero no estoy seguro.
ITA:
Vorrei uno studio dove gli spazi vengano ben sfruttati e soprattutto la scala interna che porta al monolocale in terrazza sia leggera e l uscita in terrazza a riparo dalla pioggia pietra, vetro e legno gli elementi. Vorrei una scala che dall'ingresso mi porti in terrazza. Stiamo valutando un piccolo "pre-ingresso" che ci porti direttamente in terrazza per essere autonomi. Vorrei inserire una cucina in muratura in terrazza e renderla più accogliente così da sfruttarla anche d'estate.
Ho pensato ad un bagno in camera nel monolocale; attualmente abbiamo valutato che il bagno in camera sia anche della cameretta però non ne sono sicura.