
24020 Bueggio BG, Italy
Residenziale - small-apt
Descrizione
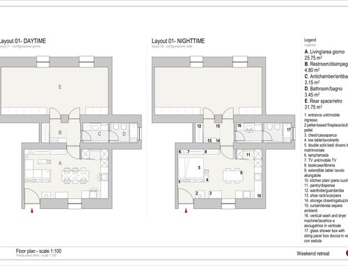
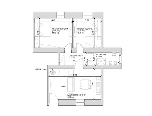
Turn currently raw ("a grezzo") ground floor in easy to use/maintain studio for weekend use (couple use, no kids). Design to take into consideration future restructuring of back half of flat (same lever as front half, but lower-ground floor due to uneven ground surrounding the house) into 2 bedrooms flat
Flat is located in the ground floor (front half, becoming lower-ground floor in the rear half due to uneven ground floor surrounding the building) of a 5-story family building (sister, parents, uncle etc.). Entrance is directly from the communal garden / yard (see pictures main entrance and window on the left, next to main stairs leading to higher floors).
Flat is current at "grezzo" / raw, completed "vespaio" / air gap below the floor to ensure insulation and perimeter walls newly insulated (c.15cm material). No possibility to move (nor enlarge) front entrance and window. Similarly, the two central walls (c.50cm and c.65cm thick) of the hallway are structural, ideally project would not assume relocation of doors / openings in these.
The idea is to nicely finish the front part (accessible from entrance) to make it usable and convenient for short couple breaks (weekend-trips) during all year (including winter, who is generally cold and snowy in the area). The design should include the possibility (at a later time) of the rear-end of the flat (on the other side of the hallways, lower-ground but same level as front) with two bedrooms.
Restroom / shower room could be thought to be fitted in the hallway, which has a window facing a limited access outside area.
Entrance is facing East
One more thing: ideally would have a pellet-based fireplace in the living room supplemented by gas-heating in the entire flat
>>>
Obiettivo e' di ristrutturare un piano terra in contesto condominiale (familiare) con ampio giardino / cortile in un monolocale (con possibilita' di futuro completamento con due stanze da letto nella parte posteriore) per utilizzo saltuario per brevi permanenze (weekend) privilegiando funzionalita'.
I locali si trovano al piano terra del condominio: la meta' anteriore al piano terra affacciandosi direttamente sul viale principale di accesso al cortile e cortile stesso, e la meta' posteriore in situazione di semi-interrato (intero appartamento si trova su un unico livello, la parte posteriore e' in situazione di semi-interrato con aperture/punti luce verso intercapedine di circa 4 metri tra muro immobile e muro portante del terreno circostante).
L'appartamento si trova in condizioni di finito a grezzo; vespaio e' stato recentemente realizzato per assicurarne isolamento cosi' come isolamento perimetrale interno. I muri frontali e posteriori, nonche' del corridoio centrale, sono strutturali e portanti.
Le aperture frontali non possono essere variate ne' spostate, cosi come i punti luce posteriori. Le aperture nel corridoio centrale idealmente non dovrebbero essere spostate.
Il progetto e' di ristrutturare la parte anteriore in un monolocale funzionale includendo magazzino e bagno con doccia nell'almpio corridoio, prevedendo nel progetto la futura ristrutturazione della parte posteriore dell'appartamento (seminterrato) per ricavarne due camere dal letto
La parte anteriore (ingresso e finestra) sono rivolte ad Est
Riscaldamento ideale sarebbe stufa a pellet nel soggiorno / monolocale supplementata da caloriferi alimentati da caldaia a metano nell'intero appartamento