
37045 Legnago, VR, Italy
Residenziale - Casa
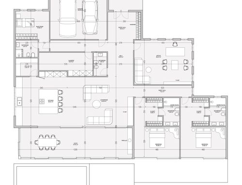
Descrizione
ENG:
I want to build a house on one floor without a step of 250 m2 max, with a swimming pool in front, a large kitchen with living room, sitting room, 2 master bedrooms, 2 master bathrooms and 1 guest bathroom, a studio with a sofa bed and TV room, a large laundry room, 1 bedroom with bathroom for the maid, a wardrobe room, 2 covered parking spaces and a shed for 3 uncovered parking spaces, a large shed in front of the kitchen and a swimming pool with a large table for eating and sofas , all of which can be closed in the colder seasons with a glass window. from the street I would like only the parking spaces, the garage and the entrance door and I would like the whole house to face south.
SPA:
Quiero construir una casa en un solo nivel sin escalon de 250 m2 máximo, con una piscina en frente, una cocina grande con sala de estar, sala de estar, 2 dormitorios principales, 2 baños principales y 1 baño de visitas, un estudio con sofá cama y sala de TV, una gran lavandería, 1 dormitorio con baño para la empleada doméstica, una habitación para armarios, 2 plazas de aparcamiento cubiertas y un techo para 3 plazas de aparcamiento descubiertas, amplio techo en frente de la cocina y la piscina con una gran mesa de comedor y sofás, todo que se pueda cerrar en las estaciones más frías con una ventana. Desde la calle me gustaría que solo estuvieran las plazas de aparcamiento, el garaje y la puerta de entrada y que la casa estuviera toda orientada al sur.
ITA:
Voglio fare una casa su un unico piano senza uno scalino da 250 mq max, con la piscina davanti , un grande cucina con soggiorno, salotto, 2 camere da letto padronali , 2 bagni padronali e 1 bagnetto ospiti, uno studio che un divano letto e sala tv, una lavanderia grande , 1 camera da letto con bagno per la colf, una stanza per armadi , 2 posti auto coperti e tettoia per 3 posti auto scoperti , ampia tettoia di fronte alla cucina e piscina con un grande tavolo per mangiare e divanetti, il tutto richiudibile nelle stagioni più fredde con una vetrata. dalla strada vorrei solo i posti auto, il garage e la porta di entrata e vorrei che la casa fosse tutto rivolta verso sud .