
07035 Sedini, Province of Sassari, Italy
Residenziale - Appartamento
Descrizione
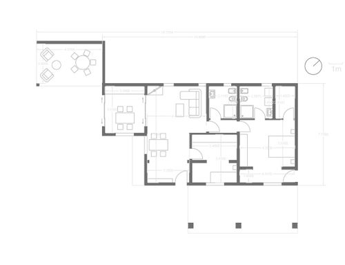
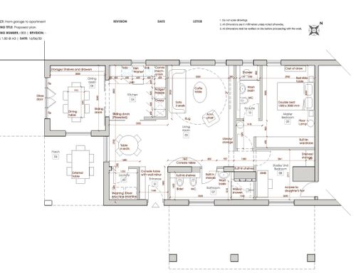
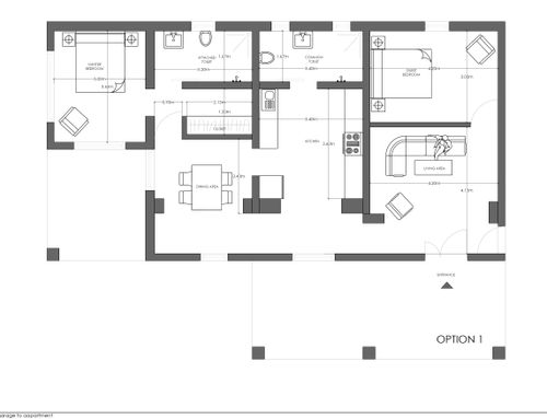
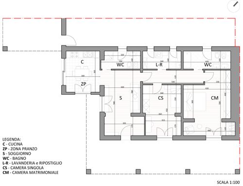
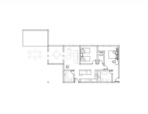
Ho un locale usato come garage vorrei convertirlo in abitazione ricavando una camera da letto padronale, una cameretta, 2 bagni, una cucina, soggiorno e salotto, una lavanderia ripostiglio.
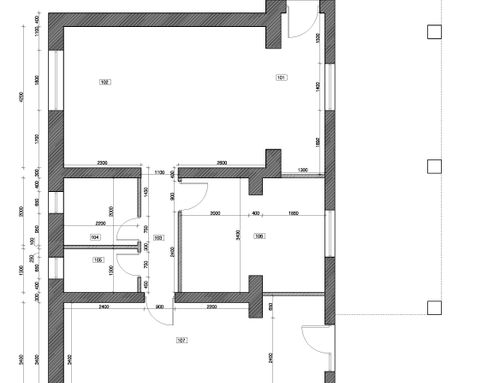
All'interno del locale ci sono dei pilastri in pietra che vorrei valorizzare.
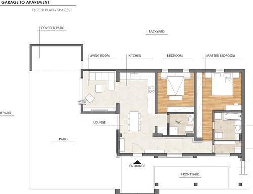
Vorrei dare spazio ed importanza principalmente alla zona giorno: al soggiorno, alla zona pranzo e al salotto.
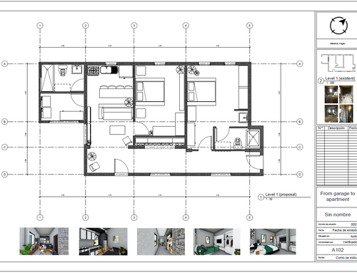
La "centrale termica" descritta nella planimetria è in realtà una stanza vuota e sfruttabile che affaccia al giardino.
ENG VERS:
I have a room used as a garage I would like to convert it into an apartment by obtaining a master bedroom, a small bedroom, 2 bathrooms, a kitchen, living room and lounge, a laundry closet.
Inside the room there are stone pillars that I would like to enhance.
I would like to give space and importance mainly to the living area: the living room and the dining area.
The "thermal power" described in the plan is actually an empty and exploitable room overlooking the garden.
SPA VERS:
Tengo una habitación utilizada como garaje. Me gustaría convertirla en una casa con una habitación principal, una habitación pequeña, 2 baños, una cocina, sala de estar y sala, un armario de lavandería. Dentro de la habitación hay pilares de piedra que me gustaría resaltar.
Me gustaría dar espacio e importancia principalmente a la sala de estar: la sala de estar, el comedor y la sala.
La "planta de energía térmica" descrita en el plano es en realidad una habitación vacía y explotable que da al jardín.