
Milan, Metropolitan City of Milan, Italy
Residenziale - Appartamento
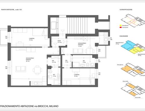
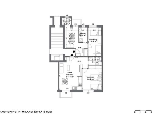
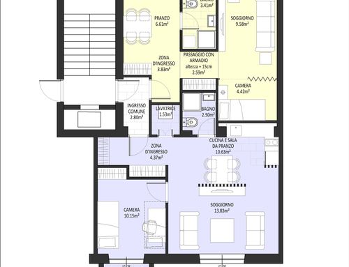
Descrizione
Milano, Via Brocchi 19
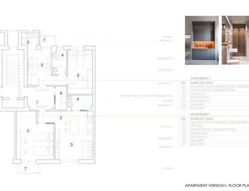
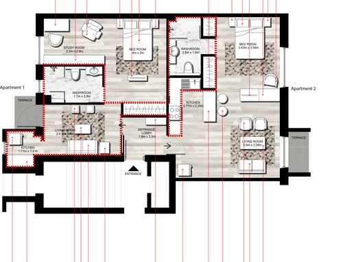
Si ha esigenza di frazionare questo appartamento in 2 bilocali potenzialmente target studenti in città studi palazzina anni '60-'70, ottimizzando gli spazi.
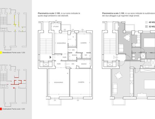
si raccomanda di tenere conto della posizione del bagno e l'eventuale spostamento in prossimità, tenendo conto che in caso di spostamento sarà necessario ipotizzare gradino di rialzo del pavimento per poter passare con gli scarichi.
Milan, Via Brocchi 19
I need to realize 2 apartments, optimizing spaces, potentially for students.
The building has been built between 60s and 70s.
It is recommended to take into consideration the position of the bath and the possible displacement next to the present one taking into account that, in case of movement, it will be necessary to foresee the passage / rise to pass with the drains