
Ardore Marina, Province of Reggio Calabria, Italy
Residenziale - Casa
Descrizione
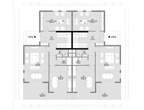
vorrei realizzare un corpo di fabbrica, previa demolizione dell'esistente, da destinare a residenze quadrifamiliare indipendenti. schematicamente specchiati, pertanto, planimetricamente occorre progettarne due. il lotto ha un lato prospiciente una strada comunale e tutti gli altri delimitati da costruzioni private. gli appartamenti dovranno essere disposti su tre livelli, seminterrato, piano rialzato e piano primo, con la possibilità di avere un ulteriore ambiente nel piano sottotetto. tutti gli ambienti devono essere illuminati, si predilige uno stile moderno, luminoso, con richiami ad uno stile contemporaneo.
I would like to build a building, after demolishing the existing one, to be used as independent four-family residences. schematically mirrored, therefore, planimetrically it is necessary to design two. the lot has one side facing a municipal road and all the others bordered by private buildings. the apartments must be arranged on three levels, basement, mezzanine and first floor, with the possibility of having an additional room in the attic floor. all environments must be illuminated, a modern, bright style is preferred, with references to a contemporary style.
Me gustaría construir un cuerpo del edificio, después de demoler el existente, para ser utilizado como viviendas independientes de cuatro familias. esquemáticamente reflejados, por lo tanto, planimétricamente es necesario diseñar dos de ellos. El lote tiene un lado que da a un camino municipal y todos los demás están bordeados por edificios privados. Los departamentos deben disponerse en tres niveles, sótano, entrepiso y primer piso, con posibilidad de tener una habitación adicional en el ático. todos los ambientes deben estar iluminados, se prefiere un estilo moderno, luminoso, con referencias a un estilo contemporáneo.