
41012 Carpi MO, Italy
Residenziale - Zona Giorno/Notte
Descrizione
Buongiorno,
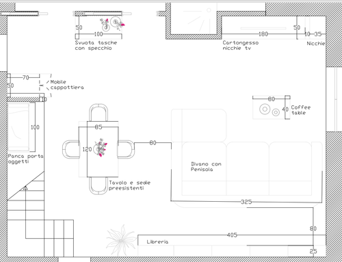
il contest riguarda il soggiorno di un'appartamento che si sviluppa su 2 piani in cui abita una famiglia di 4 persone, tra cui 2 ragazzine:
ci sono una porta finestra orientata ad est ed una finestra orientata a sud con infissi verdi mentre le porte interne sono bianche, il pavimento è in iroko.
Non sapendo come definire lo stile d'arredamento che a noi piace, lasciamo ampio margine di discrezionalità al professionista nella scelta dello stesso considerando che ci piace l’idea di mescolare il classico moderno col contemporaneo, metropolitano, ecc.. e non ci piacciono invece lo shabby, il provenzale, il country, l'etnico o il classico... insomma ci piacciono le linee pulite.
Vorremmo un soggiorno luminoso, caldo ed accogliente.
Amiamo stare tutti e quattro insieme davanti alla televisione
Fondamentalmente preferiamo i colori chiari, come il bianco, il grigio e non ci dispiace neanche il color salvia.
Per quanto riguarda l'illuminazione, tutti i punti luce attuali possono essere modificati; ci piacerebbe qualche taglio di luce parete/soffitto.
Dovendo poi imbiancare, non escludiamo la possibilità che una/due pareti (compresa quella dove si trova la tv) possano avere un colore diverso dalle altre.
NOTE PARTICOLARI
- no al divano in pelle/cuoio, gradita penisola o chaise lounge
- per allergia no a tappeti con fibre lunghe e sciolte
- ci piacerebbe poter usare ancora il tavolo e le sedie che però possono essere oggetto di restyling.
- ci capita di organizzare pranzi/cene con una quindicina di commensali: allunghiamo il tavolo, ne aggiungiamo un altro e su entrambi poggiamo 2 basi.
ENG
Good morning,
the contest concerns the living room of an apartment spread over 2 floors where a family of 4 lives, including 2 girls:
there is a French window facing east and a window facing south with green frames while the interior doors are white, the floor is in iroko.
Not knowing how to define the style of furniture that we like, we leave a wide margin of discretion to the professional in the choice of the same considering that we like the idea of mixing the modern classic with the contemporary, metropolitan, etc ... and we don't like them instead the shabby, the Provencal, the country, the ethnic or the classic ... in short, we like clean lines.
We would like a bright, warm and welcoming stay.
We all four of us love being together in front of the television
Basically we prefer light colors, like white, gray and we don't mind sage either.
As far as lighting is concerned, all current light points can be modified; we would like some wall / ceiling light cuts.
Having then to whitewash, we do not exclude the possibility that one / two walls (including the one where the TV is located) may have a different color from the others.
SPECIAL NOTES
- no to the leather / hide sofa, a peninsula or chaise lounge is welcome
- for allergy no to carpets with long and loose fibers
- we would like to be able to use the table and chairs again, but they can be restyled.
- we happen to organize lunches / dinners with about fifteen diners: we extend the table, we add another one and we rest on both bases.
SPA
Buenos dias,
el concurso se refiere a la sala de estar de un apartamento distribuido en 2 plantas donde vive una familia de 4 personas, incluidas 2 niñas:
hay una ventana francesa orientada al este y una ventana orientada al sur con marcos verdes mientras que las puertas interiores son blancas, el piso es de iroko.
Sin saber definir el estilo de mobiliario que nos gusta, dejamos un amplio margen de discreción al profesional en la elección de los mismos considerando que nos gusta la idea de mezclar lo clásico moderno con lo contemporáneo, metropolitano, etc. .. y no nos gustan más bien los raídos, los provenzales, los campestres, los étnicos o los clásicos ... en fin, nos gustan las líneas limpias.
Nos gustaría una estancia luminosa, cálida y acogedora.
A los cuatro nos encanta estar juntos frente a la televisión.
Básicamente preferimos colores claros, como el blanco, el gris y tampoco nos importa la salvia.
En cuanto a la iluminación, se pueden modificar todos los puntos de luz actuales; nos gustaría algunos cortes de luz de pared / techo.
Teniendo luego a encalar, no descartamos la posibilidad de que una / dos paredes (incluida la que está ubicada la TV) puedan tener un color diferente a las demás.
NOTAS ESPECIALES
- No al sofá de cuero / piel, se acepta una península o un diván
- para la alergia no a las alfombras con fibras largas y sueltas
- Nos gustaría poder volver a utilizar la mesa y las sillas, pero se pueden remodelar.
- Sucede que organizamos almuerzos / cenas con unos quince comensales: ampliamos la mesa, añadimos otra y nos apoyamos en ambas bases.